
土屋ホームトピア 首都圏 | リフォーム事例を見る | リノベーション(全面改修) 受け継いだおじいちゃんの家
写真のみ

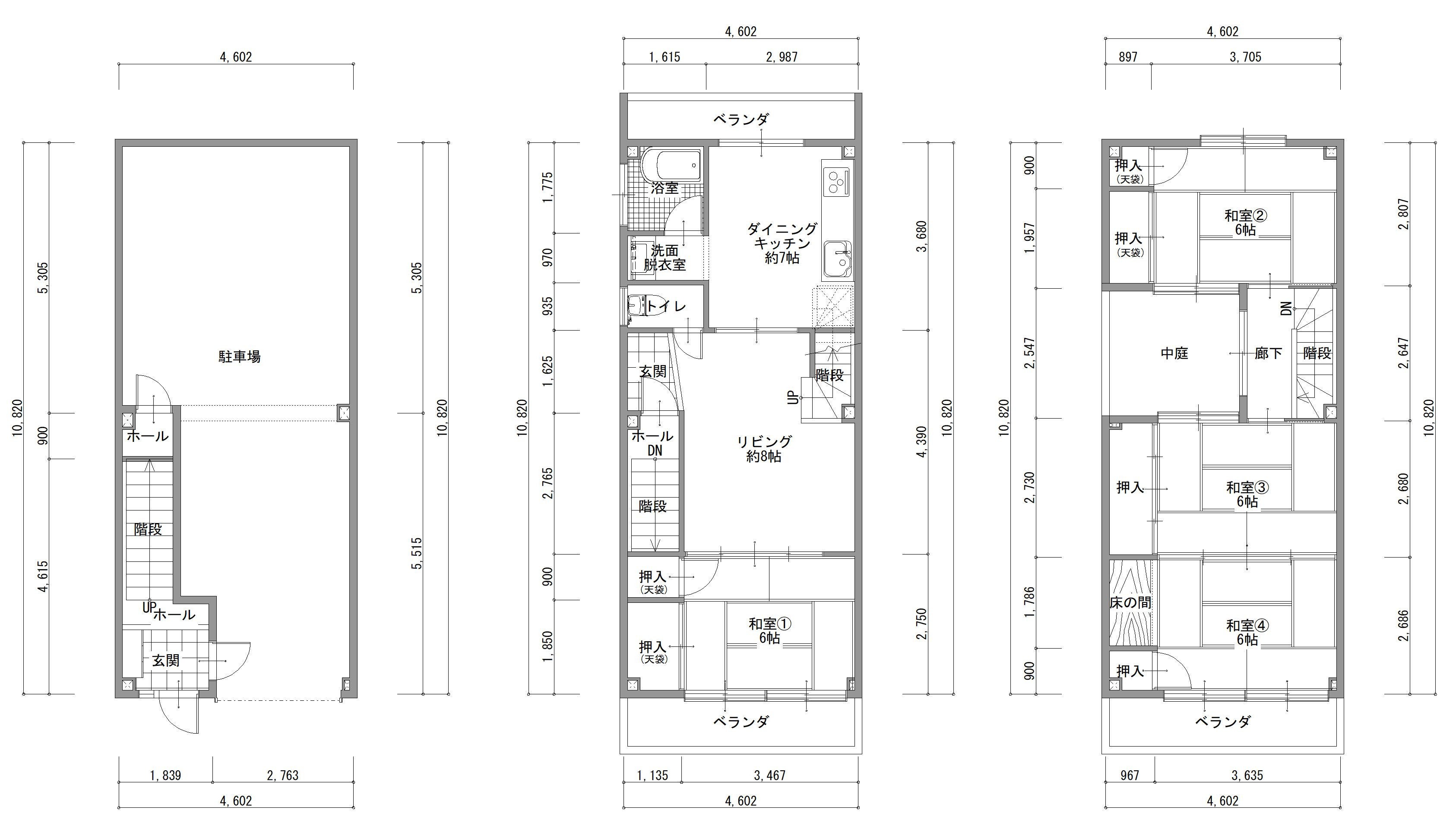
和室とリビングを繋げ、一つの空間に。キッチンを移動し、新たなKLDとなりました。家族の様子を見守れる間取りとなり、安心しながらくつろぐことができるようになりました。

キッチンスペースじはもともとは和室だった場所。大きな窓を背にする大胆な間取り変更で、キッチン&リビングダイニングの既存の暗さ問題を解決しました。

階段からの光が白色の壁に反射し、ルーバーの間からも溢れるようにしたことで更に明るいリビングに。

現在寝室。今後の家族計画によって間取りを新たに創れる様、広々とした部屋を用意しました。将来的に子供部屋として使用するか、夫婦の寝室として使用するか楽しみながら暮らすことができます。

手狭だった洗面・脱衣室、トイレだった場所を一つの空間にし、新しくUTを造りました。収納棚を設置する事で、洗剤やものが整理整頓、片付けやすくなり、すっきりとしたUTとなりました。

もともとキッチンだった場所をペットルームに。掃性や傷に配慮した内装とする事で住人もペットもストレス無く暮らせるよう計画。清掃用のシンクを設ける事でお手入れも簡単になりました。

キッチンだった場所、現在ペットルームとなった間取りの一部を新しくトイレに。アクセントクロスとして壁の一面のみボタニカル柄にし、ヘリボーン柄のオシャレなクッションフロアでヨーロッパのような印象に。

ヨーロッパ風の木彫の玄関ドアと、玄関口の床タイルでまるでCAFÉのような印象に。ピンク系と茶系のランダムな床タイルが訪れる人を柔らかで明るい気持ちにさせてくれます。

before

after
リフォーム会社のコメント
【プランナー/今野峻介】
築42年。空き家になっていた祖父の家を受け継いで7年住まわれたお施主様。結婚し生まれてくる子供の為にも快適な住まいへと改修したいとの事。
リビングとして使用している部屋が暗いので改善したい。将来的に子供が増える事も想定した間取りにして欲しい。古くなっている設備機器は全て交換したい。飼っているペット達にとっても快適な住まいとなる様にしたい。などのご要望を受け、キッチンを南側の窓の前へ大きく移動し、3階の窓からの光が階段から降りそそぐLDKを計画。
就寝以外の時間を2階で出来る限り過ごせるようペットルームをLDKに隣接させました。
3階は今後の家族計画を想定し、大・小の二つの部屋に分け、可変性を持たせて計画し、窓には内窓を施工し、外壁・屋根面に断熱材を施工する事で性能向上を図りました。
【お施主様のお声】
自分達では考えもしない間取りの変更でリビングが明るくなって良かったです。また、小さな子供の様子を見られるキッチンになったのでこれからも安心して生活できそう。 元々は3階で過ごしていたペット達が、リビングの隣にきた事で鳴き声などが聞こえてきて森の中にいるような雰囲気になって良かったです。
―――――――――――――――――――――
◆当社の事例集はこちらかもご覧いただけます。◆
https://www.hometopia.jp/gallery/
(URLを範囲選択、右クリックで『移動する』を選択で見ることが出来ます。)
―――――――――――――――――――――
リフォーム概要
建物種別 | 戸建 |
---|---|
リフォーム部位・テーマなど | リノベーション(全面改修) | キッチン | 風呂 | トイレ | 洗面化粧台・洗面所 | リビング・ダイニング | 洋室・子供部屋 | 寝室 | 和室 | 玄関・ポーチ | 廊下・階段 | 床・フローリング | 収納 | ペット | 断熱・窓・省エネ | 自然素材 | その他 |
参考価格 | 1300万円 (内訳:LDK 350万円、浴室120万円、洗面室80万円、トイレ50万円、寝室180万円、洋室A 100万円、洋室B 90万円、玄関・階段160万円、その他170万円) |
施工時期 | 2020年03月実施 |
メーカー名・製品名 | |
タグ |
土屋ホームトピア 首都圏 その他のリフォーム事例
マイページ登録されていない方
\ かんたん!1分で登録完了! /
会員限定4つのメリット
最大5社までまとめて見積りができる
一度に10社まで匿名で問い合せができる
気になる会社や事例写真を
保存して分析できる
リフォームに役立つ情報を
定期配信
<注意>
マイページ登録はリフォームを検討中のお客様を対象としたサービスです。
営業・商談・営利目的での「マイぺージ」登録やメッセージなどの送信はご遠慮ください。