
土屋ホームトピア 首都圏 | リフォーム事例を見る | キッチン 90歳の母との新しい暮らし
写真のみ

全体的に古く暗いLDKが、ダウンライトや自然素材こだわることで明るく開放感のある空間へと変わりました。

ダイニングキッチンを拡張して、壁付古く狭いキッチンを対面キッチンに変更しました。(リビング側からの眺め)

清潔感があり、コンパクトなキッチン。二人暮らしには十分な広さになりました。

東側和室をリビングへ変更、床は半畳たたみ敷。お母様の寝室はリビングの右隣で、襖から障子へ交換。 リビングの天井は板張り、押入襖は既存再利用しました。

キッチンからお母様の寝室を確認。家事をしながら高齢のお母様をいつも見守ることが出来ます。

洋室。

玄関ホールから見たダイニングキッチン。明るく見通しの良い空間で解放感も。

トイレ

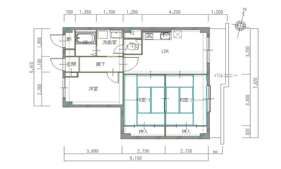
before

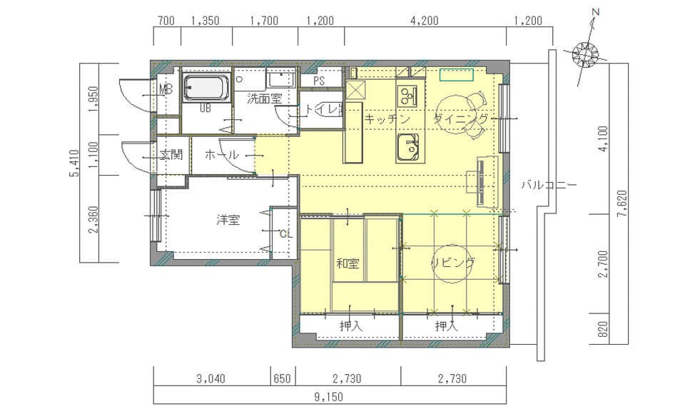
after
リフォーム会社のコメント
【プランナー/菅井弘和】
ご実家で一人暮らしをしていたお母様が90歳を迎え、このままの状況を考えると生活環境、体調、精神面に不安を感じたお施主様。お母様と一緒に住む為、築35年の中古マンションを購入して同居を決断。お母様がどこにいても目が届く間取りで、自然素材を使い、結露やカビ対策の他、安心して暮らせるような部屋を希望との事。
キッチンからダイニング・リビング・寝室と、お母様がどこにいても様子を確認できて、コミュニケーションが取れる間取りにいたしました。
和室の段差20mmを解消するために、床12mmベニヤ捨て貼り+ウールカーペット仕上げにしました。
老後資金の不安解消のため押入襖は既存品を再利用して節約、節約した分は断熱性能・換気システムに充てました。
結露カビ防止のため、壁にネオマ断熱ボード貼りと、自然熱交換換気グリル付のインナーサッシを施工。【Low-Eペアガラス入インナーサッシ取付で熱貫流率が、6.51(W/m2・K)から1.71へ。外部に面する壁:ネオマ断熱ボード20の熱伝導率0.02(W/m・K)】
【お施主様のお声】
どこにいても母の様子を見ることができて、お互いに安心して生活できるようになりました。ホール・ダイニングの床はウールカーペット、リビング・寝室はタタミ仕上げにしたので、素足のままで温かく気持ちよく快適に生活できます。寝室よりホールに出ないでトイレ・洗面室に行ける間取りは思っていたより便利です。
――――――――――――――――――――――――――――――――――――
◆当社の事例集はこちらかもご覧いただけます。◆
https://www.hometopia.jp/gallery/
(URLを範囲選択、右クリックで『移動する』を選択で見ることが出来ます。)
――――――――――――――――――――――――――――――――――――
リフォーム概要
建物種別 | マンション |
---|---|
リフォーム部位・テーマなど | キッチン | トイレ | リビング・ダイニング | 洋室・子供部屋 | 和室 | 玄関・ポーチ | 廊下・階段 | 床・フローリング | 断熱・窓・省エネ | バリアフリー・介護 | 自然素材 |
参考価格 | 250万円 (内訳:床改築仕上げ60万円 壁改築仕上げ50万円 天井改築仕上げ20万円 キッチン交換80万円 設備電気20万円 断熱工事20万円) |
施工時期 | 2020年02月実施 |
メーカー名・製品名 | |
タグ |
土屋ホームトピア 首都圏 その他のリフォーム事例
マイページ登録されていない方
\ かんたん!1分で登録完了! /
会員限定4つのメリット
最大5社までまとめて見積りができる
一度に10社まで匿名で問い合せができる
気になる会社や事例写真を
保存して分析できる
リフォームに役立つ情報を
定期配信
<注意>
マイページ登録はリフォームを検討中のお客様を対象としたサービスです。
営業・商談・営利目的での「マイぺージ」登録やメッセージなどの送信はご遠慮ください。