
土屋ホームトピア 首都圏 | リフォーム事例を見る | リノベーション(全面改修) ライフスタイルに合わせていく家
写真のみ

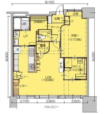
家族の集まるLDKを家の中心部分に核として設定。人も空気も行き止まりだった配置から、どこからでも2方向動けて空気が流れるように改善。明るく広々とした印象に。

キッチン側から見たLD。全ての窓にD1窓を設置し、窓自体で換気と断熱(遮熱)を取るようにしカビ対策とした。

動線を意識した間取りにしたことで料理や洗濯などの家事もしやすくなり、収納も十分にとった為スッキリとしたキッチンに。

キッチン奥のUT。床をヘリボーンにしたことでぐっとデザイン性がアップ、ヨーロッパや北欧のような雰囲気に。収納棚も設けてあるので、洗剤などの雑然としがちな小物もスッキリとし、綺麗さを保つことが出来ます。

キッチン横に新たに作ったワークスペース。書類や料理本など筆記用具類などの小物も見えないように収納出来、常にスッキリと整頓が出来ます。

玄関、エントランスに造られたご主人用のワークスペース。あえて隔離した空間はTVの音や家族の声など、家庭音もシャットアウト出来るので集中して作業が出来る大人の秘密基地に。

同じくご主人のワークスペース。壁紙の柄を工夫する事で閉鎖感を軽減。狭い空間を逆手にお洒落な照明と棚を設置する事で、使い勝手の良い雰囲気ある空間に。横向きのデスク配置はドアを開けたままにすると解放感も。

照明をあえて横に。陰影が美しい演出をしてくれるので、まるでお洒落な店舗のようなトイレになりました。

before

after
リフォーム会社のコメント
【プランナー/錠者尚子】
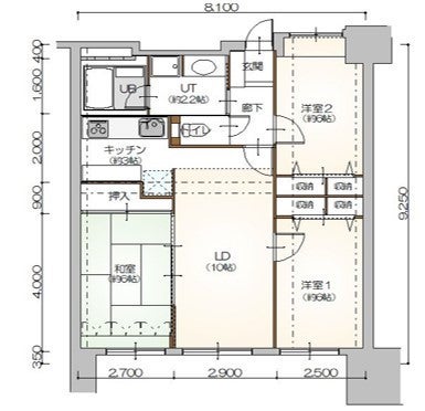
御両親が引っ越すことになり、空いた実家を自分仕様にとリフォームをご決断。実家で住んでた時から風通しが悪くカビも出てるので解消し、ゆうゆくは小さくても子供部屋2部屋取れる3LDKの家にしたい。子供が玄関から直接から直接お風呂へ行け、また大きな収納が欲しいとのご要望。
問題は人も空気も行き止まりになる配置なので、どこからでも2方向動ける計画にしました。家族の集まるLDKを家の中心部分に核として設定。全ての窓にD1窓を設置し、窓自体で換気と断熱(遮熱)を取るようにしカビ対策としました。
洋室は南と北からの風の通る間取りにし、いずれ洋室1とLDKの東側は壁で仕切って個室に出来るように設定しました。
(※DI窓:開口部のサッシ窓枠を通気部分として新鮮な外気を導入し、逃げる熱を熱交換換気により室内に引き戻す、窓と熱交換換気機能を一体化したシステム)
【お施主様のお声】
風が良く通り、収納も予想以上に入るので使いやすいです。キッチンに立つと全てが見渡せて、家が大きくなったように感じられました。動きやすくてとても気に入ってます。
――――――――――――――――――――――――――――――――――――
◆当社の事例集はこちらかもご覧いただけます。◆
https://www.hometopia.jp/gallery/
(URLを範囲選択、右クリックで『移動する』を選択で見ることが出来ます。)
――――――――――――――――――――――――――――――――――――
リフォーム概要
建物種別 | マンション |
---|---|
リフォーム部位・テーマなど | リノベーション(全面改修) | キッチン | 風呂 | トイレ | 洗面化粧台・洗面所 | リビング・ダイニング | 洋室・子供部屋 | 寝室 | 和室 | 玄関・ポーチ | 廊下・階段 | 床・フローリング | 収納 | 断熱・窓・省エネ | バリアフリー・介護 | その他 |
参考価格 | 900万円 (内訳:キッチン200万円 UB・UT200万円 トイレ50万円 内窓(DI)70万円 解体改築工事・建材類・電気工事・他・諸経費330万円 照明・カーテン50万円) |
施工時期 | 2020年01月実施 |
メーカー名・製品名 | |
タグ |
土屋ホームトピア 首都圏 その他のリフォーム事例
マイページ登録されていない方
\ かんたん!1分で登録完了! /
会員限定4つのメリット
最大5社までまとめて見積りができる
一度に10社まで匿名で問い合せができる
気になる会社や事例写真を
保存して分析できる
リフォームに役立つ情報を
定期配信
<注意>
マイページ登録はリフォームを検討中のお客様を対象としたサービスです。
営業・商談・営利目的での「マイぺージ」登録やメッセージなどの送信はご遠慮ください。