
土屋ホームトピア 首都圏 | リフォーム事例を見る | リノベーション(全面改修) 天井高3mの活かし方
写真のみ

3mの天井高を生かした間接照明とペンダントライト。日が暮れるとアール上のライトがLDKを表情豊かに演出してくれます。

壁と天井の堺に鏡を設置する事で空間に奥行きを演出し、『錯覚』を用いたデザイン。LDが通常よりぐっと広く感じます。

料理するのが楽しくなるようなゆったりとしたアイランドキッチン。アールの天井が柔らかさも演出します。

キッチンを抜けた先、洗面室→ウォークスルークローゼットという配置にする事で家事動線が効率的に。

寝室にハンモックを付けたい、というお施主様の要望でハンモック用に壁を補強。

寝室のロフトベッド下はパソコン用デスクを設置。まるで秘密基地のようなワークスペースが出来ました。

トイレは壁の一部をアクセントクロスにすることで遊び心を。棚を木彫にすることで高級感を演出。

玄関横のシューズインクローゼットにはコートが掛けられるようにする事で、外の埃や雨天時の濡れたコート対策にも。

before

after
リフォーム会社のコメント
【プランナー/和田麻美子】
都内に住む一戸建の住宅は、築年数も古くなり、寒い、暗い、段差有りの三拍子。これからの夫婦の生活を考え、利便性の良い場所に中古マンションを購入し、自分たち仕様のリノベをすることとした。
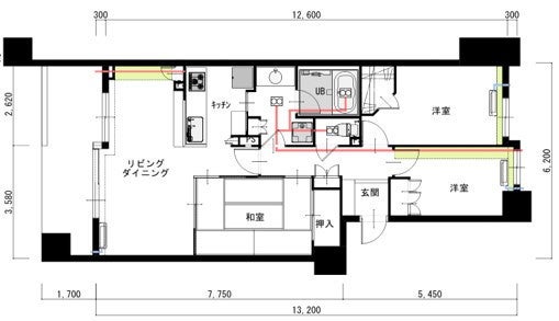
3mの天井高を最大限生かし、間接照明や、ペンダントで高さ感を、壁際天井際の鏡で広さ感を演出。レンジフードの排気ダクトで天井が下がった部分はアールの間接で処理。床下の懐が十分あり、浴室を大胆に移動出来た為、キッチン⇔洗面(家事)⇔ウォークスルークローゼット⇔寝室の動線を確保。家事効率良いプランとなった。
【お施主様のお声】
寝室のミドルロフトやハンモックはお孫さんにも大好評。リノベでやってみたい事、取り入れたい仕様を、全て実現しました。お友達もたくさん来てもらい、ショールームの様に使っています。
――――――――――――――――――――――――――――――――――――
◆当社の事例集はこちらかもご覧いただけます。◆
https://www.hometopia.jp/gallery/
(URLを範囲選択、右クリックで『移動する』を選択で見ることが出来ます。)
――――――――――――――――――――――――――――――――――――
リフォーム概要
建物種別 | マンション |
---|---|
リフォーム部位・テーマなど | リノベーション(全面改修) | キッチン | 風呂 | トイレ | 洗面化粧台・洗面所 | リビング・ダイニング | 洋室・子供部屋 | 寝室 | 和室 | 玄関・ポーチ | 廊下・階段 | 床・フローリング | 収納 | 断熱・窓・省エネ | バリアフリー・介護 | その他 |
参考価格 | 1600万円 (内訳:リビング・ダイニング300万円、 キッチン400万円、浴室200万円、UT50万円、洗面室80万円、ウォークスルークローゼット100万円、寝室A80万円、寝室B150万円、トイレ70万円、玄関・ホール70万円 、運搬諸経費100万円) |
施工時期 | 2021年12月実施 |
メーカー名・製品名 | |
タグ |
土屋ホームトピア 首都圏 その他のリフォーム事例
マイページ登録されていない方
\ かんたん!1分で登録完了! /
会員限定4つのメリット
最大5社までまとめて見積りができる
一度に10社まで匿名で問い合せができる
気になる会社や事例写真を
保存して分析できる
リフォームに役立つ情報を
定期配信
<注意>
マイページ登録はリフォームを検討中のお客様を対象としたサービスです。
営業・商談・営利目的での「マイぺージ」登録やメッセージなどの送信はご遠慮ください。