
土屋ホームトピア 首都圏 | リフォーム事例を見る | キッチン 行き止まりから流れるキッチンへ
写真のみ

収納は壁面収納でスッキリと。生まれ育った家の面影を残す為既存の明り取りのガラスは移設して再利用。既存のキッチンだった場所を移動する事で動線の効率化を図り、かつ広々としたLDKに。

背面収納のカウンターには出窓部分を活かし奥行きのあるガスオーブンを設置。 下はゴミ箱スペースに。キッチンと奥のバックヤードの床は高性能GW150㎜断熱を使用する事で、冬も足元が暖かい。

リノベーション前の既存のDK(向かって左手キッチン)

before

after
リフォーム会社のコメント
【プランナー/和田麻美子】
ご夫婦と幼稚園にあがるお子様3人の施主家族。お子様の教育環境を考えて築48年の奥様のご実家で同居を始めたが、同居して半年、設備の老朽化と動きずらいキッチンの改修を決断されました。
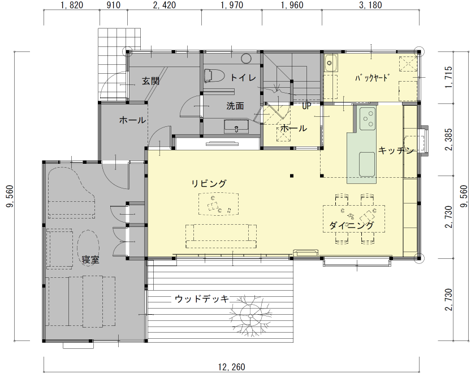
小さなお子様の様子を見ながら作業できるLDKを希望との事で、キッチンは90度回転し、リビングへの視界が開ける様柱を残し壁を撤去。バックヤードへはツーウェイとし、行き止まりなく動線が流れる配置としいたしました。
今までの収納量は壁面収納でカバーし、既存の明り取りのガラスは移設して再利用する事で、ご両親と奥様の生まれ育った家の面影を残しての改修となりました。
【お施主様のお声】
LDKが一体となり、明るく広々とした空間となりました。
コロナが収束したら、以前から行っていた人を集めての料理教室を開くのを楽しみにしています。
――――――――――――――――――――――――――――――――――――
◆当社の事例集はこちらかもご覧いただけます。◆
https://www.hometopia.jp/gallery/
(URLを範囲選択、右クリックで『移動する』を選択で見ることが出来ます。)
――――――――――――――――――――――――――――――――――――
リフォーム概要
建物種別 | 戸建 |
---|---|
リフォーム部位・テーマなど | キッチン | リビング・ダイニング | 床・フローリング | 断熱・窓・省エネ |
参考価格 | 400万円 (内訳:キッチン300万円 リビング・ダイニング100万円) |
施工時期 | 2020年12月実施 |
メーカー名・製品名 | |
タグ |
土屋ホームトピア 首都圏 その他のリフォーム事例
マイページ登録されていない方
\ かんたん!1分で登録完了! /
会員限定4つのメリット
最大5社までまとめて見積りができる
一度に10社まで匿名で問い合せができる
気になる会社や事例写真を
保存して分析できる
リフォームに役立つ情報を
定期配信
<注意>
マイページ登録はリフォームを検討中のお客様を対象としたサービスです。
営業・商談・営利目的での「マイぺージ」登録やメッセージなどの送信はご遠慮ください。