
土屋ホームトピア 北海道営業部 | リフォーム事例を見る | リノベーション(全面改修) 借景窓で自然と明かりを取入れる
写真のみ

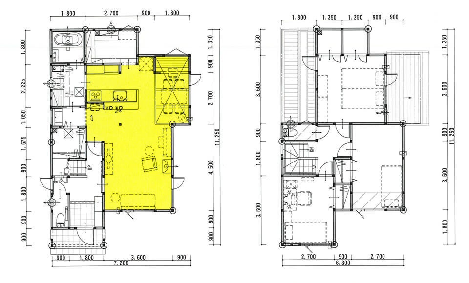
リビングは元々あった和室を無くし、広々とした空間を実現。

リビングダイニングは一続きにして会話がしやすい空間になりました。

ダイニングは東側に移動をしたことで、朝日が入る明るい空間に変身しました。

自宅裏の公園側に新しく窓を新設し、自然の四季が感じられる借景窓をつけ、そこにワークスペースを確保しました。春には窓から満開の桜が。

1階と2階を繋ぐ小窓をつけて、猫が自由に行き来できるようにしました。暖気の通気口にもなっています。

構造上取り外しの出来なかった既存の柱に、麻ひもを巻きつけて猫の爪とぎ柱として活用。

公園側から見た外観。

玄関側から見た外観。

before

after
リフォーム会社のコメント
【プランナー・伊藤瞳】
26年前に建売で購入した家に長年の不満があり、ご主人様の定年を機にリフォームを決意したお施主様。不満点は3つ。
①食堂・台所が暗く居間と離れているため、家族と会話がしにくい。
②収納が足りず和室が物置状態でカビやすくなっている。
③猫2匹のトイレ・食事場所に困っている。
不満点を解決し人と猫達が快適に暮らせる家にしたいとの事で、北西側の食堂を南東側に移動し、朝日が入る明るさと居間とつながるようにしました。また、自然が多い北東側の遊歩道に着目し、南東側の和室は床の間の壁を開口して借景窓を配置。外とのつながりを持たせました。猫にも心地よく楽しく過ごしていただく為、屋根断熱を施工した吹上天井に、猫達も上下自由に行き来できる空間にいたしました。寒さ対策の為、断熱窓に全交換することに合わせて、窓の配置を考慮し、耐震性能も向上いたしました。
【お施主様のお声】
公園の桜や木々を見ながら食事ができる様になるとは想像していませんでしたが、借景窓から小鳥のさえずりが聞こえたりエゾリスの観察ができ身近に自然を満喫しています。2階の寝室の壁にできたくぐり穴を通って、猫達が1階と2階を行ったり来たりしていて楽しそうです。LDKが開放的になり使いやすくなったので、友人を呼んでホームパーティを開きたいです。
リフォーム概要
建物種別 | 戸建 |
---|---|
リフォーム部位・テーマなど | リノベーション(全面改修) | 屋根・外壁 | キッチン | 風呂 | トイレ | 洗面化粧台・洗面所 | リビング・ダイニング | 洋室・子供部屋 | 寝室 | 和室 | 玄関・ポーチ | 廊下・階段 | 床・フローリング | 収納 | ペット | 耐震 | 断熱・窓・省エネ | その他 |
参考価格 | 1550万円 (内訳:リビング:70万 キッチン:150万 食堂:85万(吹上天井改修含む) 玄関ホール:80万 1階トイレ:50万 1階洗面脱衣室:100万 浴室:85万 家事室:40万 WICL:20万 階段~2階ホール:25万 2階トイレ:50万 2階洋室:85万 外壁(断熱改修含む):380万 屋根:130万 諸経費・産廃費等:200万) |
施工時期 | 2021年01月実施 |
メーカー名・製品名 | |
タグ |
土屋ホームトピア 北海道営業部 その他のリフォーム事例
マイページ登録されていない方
\ かんたん!1分で登録完了! /
会員限定4つのメリット
最大5社までまとめて見積りができる
一度に10社まで匿名で問い合せができる
気になる会社や事例写真を
保存して分析できる
リフォームに役立つ情報を
定期配信
<注意>
マイページ登録はリフォームを検討中のお客様を対象としたサービスです。
営業・商談・営利目的での「マイぺージ」登録やメッセージなどの送信はご遠慮ください。