
土屋ホームトピア 北海道営業部 | リフォーム事例を見る | リノベーション(全面改修) 12坪減築でちょうど良い間取り
写真のみ

ダイニングキッチンは既存の東側から西側へ移動。ドアや扉、床など明るい木調の色味で合わせる事により、ナチュラルで優しい統一感がうまれました。

リビングは天井の一部を吹き抜けにし、日差しが入る明るい印象に。広々とした空間で子供たちがのびのびと遊んで過ごせるリビングとなりました。

広い作業台やシンク、使い勝手の良い動線など広々としたオープンキッチンに変更し、家事をしながら子供たちの様子が見える様にいたしました。

階段下のを利用して、半畳ほどの空間のワークスペースを確保。ご主人専用のワークスペースとして活用。リビングから隔離されているので、集中して作業が出来るワークスペースとなりました。

和室はフラットに。畳の色味を変えてアクセントにしました。

広々とした洗面室には洗濯干し完備

来客時の片付の心配をしないよう玄関収納はエリア分け。 大容量のシューズクロークも併設いたました。

減築したスペースに駐車場を作りました。減築前の狭い組込車庫からカーポートになり乗降が楽に。縦列で2台駐車可能。

before

after
リフォーム会社のコメント
―――――――――――――――――――――――
ジェルコリフォームデザインコンテスト/
北海道支部 札幌市・環境配慮型リフォーム賞
―――――――――――――――――――――――
【プランナー・広川直樹】
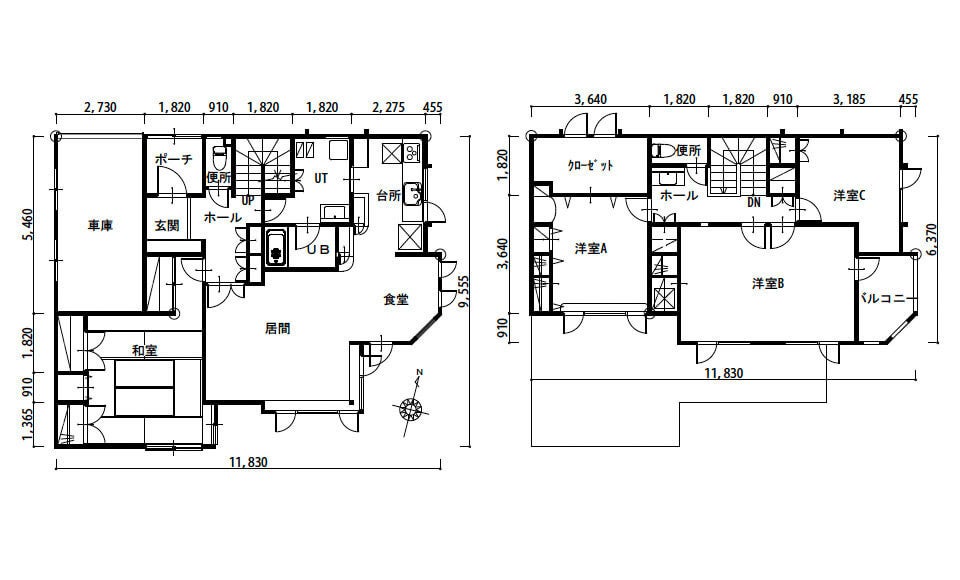
譲り受けた築33年の奥様の実家を、建替えから予算内で補助金活用で性能向上できるリフォームに(ご両親の勧めもあり)方針転換。広すぎる家を35坪程度に縮小しました。
『子供達を見守れる子育てしやすい家、在宅業務のできる室内環境にしたい。』というお施主様の要望。
屋根のある2Fのバルコニーは日陰で利用頻度が少ない為、リビングの吹抜けにして奥まで光が行き渡るようにしました。
無落雪屋根だが地盤が弱く積雪の負担を考慮。
減築で一部基礎が無い部分への杭打が困難なため、既存杭を利用して地耐力確保しました。
水廻りを東から西側へ移動し、階段は吹抜を囲んだ開放的な居間階段へ変更。
熱交換集中換気システム導入。外張断熱+トリプルガラス窓採用で断熱性能向上。
長期優良住宅(子育て世帯)補助金活用させていただきました。
【お施主様のお声】
リビングの斜めの壁はリフォーム前の名残でかつての食事風景を思い出します。
広いLDKと階段は子供たちのお気に入りスペース、広々と遊べるので暫くソファーが置けません。(笑)
コロナ禍で在宅が多くなり、階段下の小さなワークスペースが意外と落着き気に入ってます。
家の性能(特に断熱)向上が実感できて快適で、友達に自慢しています。
――――――――――――――――――――――――――――――――――――
◆当社の事例集はこちらかもご覧いただけます。◆
https://www.hometopia.jp/gallery/
(URLを範囲選択、右クリックで『移動する』を選択で見ることが出来ます。)
――――――――――――――――――――――――――――――――――――
リフォーム概要
建物種別 | 戸建 |
---|---|
リフォーム部位・テーマなど | リノベーション(全面改修) | 屋根・外壁 | キッチン | 風呂 | トイレ | 洗面化粧台・洗面所 | リビング・ダイニング | 洋室・子供部屋 | 寝室 | 和室 | 玄関・ポーチ | 廊下・階段 | 床・フローリング | 収納 | 外構・エクステリア | カーポート・ガレージ | 耐震 | 断熱・窓・省エネ | バリアフリー・介護 | その他 |
参考価格 | 2570万円 (内訳:玄関・ホール・階段210万円、水廻り405万円、LDK340万円、ワークスペース20万円、和室100万円、子供室100万円、寝室80万円、納戸35万円、外壁600万円、屋根150万円、エクステリア270万円、諸経費・産廃費260万円) |
施工時期 | 2020年10月実施 |
メーカー名・製品名 | |
タグ |
土屋ホームトピア 北海道営業部 その他のリフォーム事例
マイページ登録されていない方
\ かんたん!1分で登録完了! /
会員限定4つのメリット
最大5社までまとめて見積りができる
一度に10社まで匿名で問い合せができる
気になる会社や事例写真を
保存して分析できる
リフォームに役立つ情報を
定期配信
<注意>
マイページ登録はリフォームを検討中のお客様を対象としたサービスです。
営業・商談・営利目的での「マイぺージ」登録やメッセージなどの送信はご遠慮ください。