
土屋ホームトピア 北海道営業部 | リフォーム事例を見る | リノベーション(全面改修) 2階リビングを増築リノベ
写真のみ

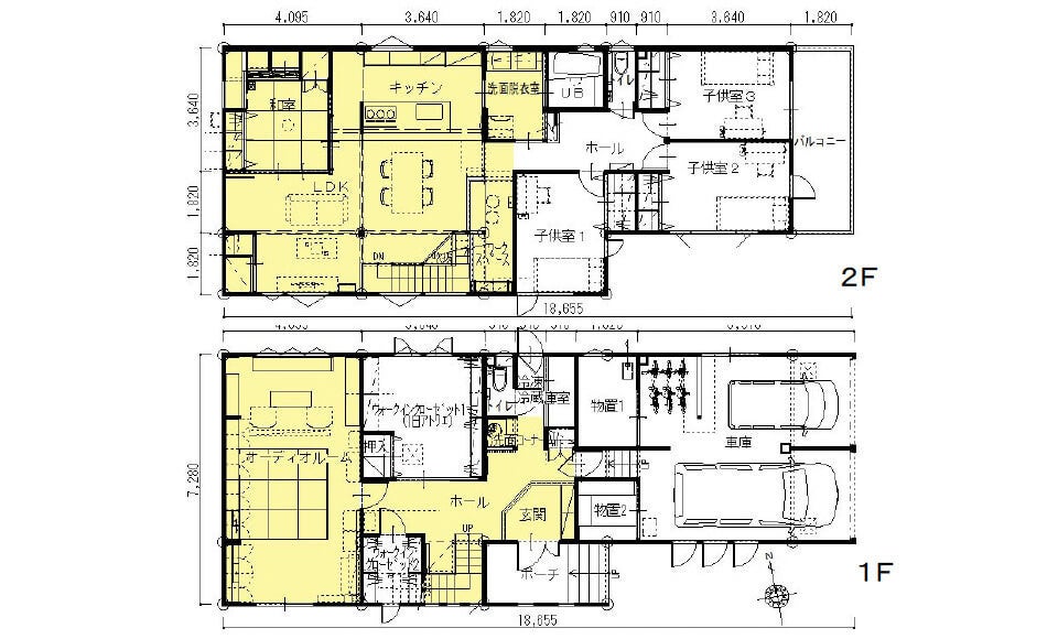
ワークスペースからLDK全体が見渡せるリビングダイニングは、落ち着いた色合いでアンティークな振り子時計ともマッチ。大黒柱から窓側左の空間は増築にてスペースを広くとりました。

子ども達はここを通って各部屋へ。帰宅時は常に顔を見ることが出来るので安心感が。

リビングを一望出来るワークスペースは、一部階段にかかるため床を40cmUPしたことで、視線が高く個室のように落ち着けるブースになりました。

既存の建具類は再利用し、リフォーム前の面影を残しつつ旅館の一室にいるようなホッと落ち着ける和室に。

居間に直接繋がる階段は、自由度のある鉄骨のオープン階段。 1階玄関ホールも明るく開放的になりました。

ご主人のAVルームとコレクション(レコード・ランプ・蓄音機・真空管機器など)

コロナ禍で、トイレ兼用の玄関手洗いと換気ユニットの取替を機に、衛生的でクリーンな室内環境へ強化。

広い洗面、ユーティリティースペースではホテルのようなシックで落ち着いた空間に。洗濯物を干しても狭く感じないように広い空間となりました。

before

after
リフォーム会社のコメント
――――――――――――――――――――――――――――
ジェルコリフォームデザインコンテスト/
北海道支部 最優秀賞(戸建全面部門)
――――――――――――――――――――――――――――
【プランナー/広川直樹】
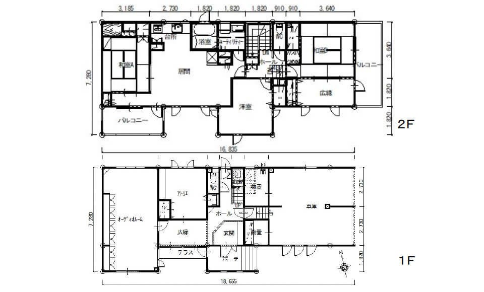
ご長男の中学進学を機に、生活拠点を空家となっていた築20年の実家へ移すことに。以前の間取りは5人で住むにはLDKが窮屈なため、居心地がよくかつ大正モダン風なインテリアにしたい、さらに家族動線に配慮し3人の子ども達を見守れる様に居間階段を付けたいとう要望をうけ、窮屈なうえ日が当たらないLDKは、バルコニーと凹部を増築して広さと採光面を改善しました。
居間階段は明るい南側の増築部へ移すことで動線を改善、階段に隣接する部分にワークスペースを作り効率性を重視した集中しやすい在宅環境を整えました。
壁の撤去と梁補強のために残した1本の構造柱は補強した上、更に大黒柱の重厚感が出る様に化粧材で覆いました。
増築に伴う車庫内の耐力UP(耐力壁新設と開口補強)で偏芯率改善。
床の段差解消等をしました。
【お施主様のお声】
勤務地は変わらないので平日は単身生活になりますが、週末家族が待つこの家へ帰るのが楽しみになりました。
家族5人それぞれの居場所が明確になり、共有部のリビングまわりが望み通りの雰囲気・広さに生まれ変わり、更に家全体の耐震性向上リフォームもしたことで安心感が得られ、とても満足しています。
――――――――――――――――――――――――――――――――――――
◆当社の事例集はこちらかもご覧いただけます。◆
https://www.hometopia.jp/gallery/
(URLを範囲選択、右クリックで『移動する』を選択で見ることが出来ます。)
――――――――――――――――――――――――――――――――――――
リフォーム概要
建物種別 | 戸建 |
---|---|
リフォーム部位・テーマなど | リノベーション(全面改修) | 屋根・外壁 | キッチン | 風呂 | 洗面化粧台・洗面所 | リビング・ダイニング | 洋室・子供部屋 | 和室 | 玄関・ポーチ | 廊下・階段 | 床・フローリング | 収納 | ベランダ・バルコニー | 耐震 | 断熱・窓・省エネ | 自然素材 | その他 |
参考価格 | 1300万円 (内訳:1F玄関ホール(鉄骨階段・増築部含む)210万円、1Fオーディオルーム180万円(造作家具含む)、2FLDK(増築部含む)695万円、2F和室60万円洗面脱衣室155万円) |
施工時期 | 2020年07月実施 |
メーカー名・製品名 | |
タグ |
土屋ホームトピア 北海道営業部 その他のリフォーム事例
マイページ登録されていない方
\ かんたん!1分で登録完了! /
会員限定4つのメリット
最大5社までまとめて見積りができる
一度に10社まで匿名で問い合せができる
気になる会社や事例写真を
保存して分析できる
リフォームに役立つ情報を
定期配信
<注意>
マイページ登録はリフォームを検討中のお客様を対象としたサービスです。
営業・商談・営利目的での「マイぺージ」登録やメッセージなどの送信はご遠慮ください。