
土屋ホームトピア 北海道営業部 | リフォーム事例を見る | リノベーション(全面改修) 20年後の家族へ残したい家
写真のみ

LDKは大幅に間取りを変更する事で東西から光が入り、明るく広々とした空間に。以前の使い勝手が悪い家がフルリフォームで、土地+家が最適に生まれ変わりました。

キッチンは広々としたシンクに作業スペースのあるペニンシュラ型キッチンに変更。可動式スポットライトで手元は自分好みの光配に。家事をしながらでも家族の気配がいつも感じられます。

キッチンには収納をたっぷりとりました。

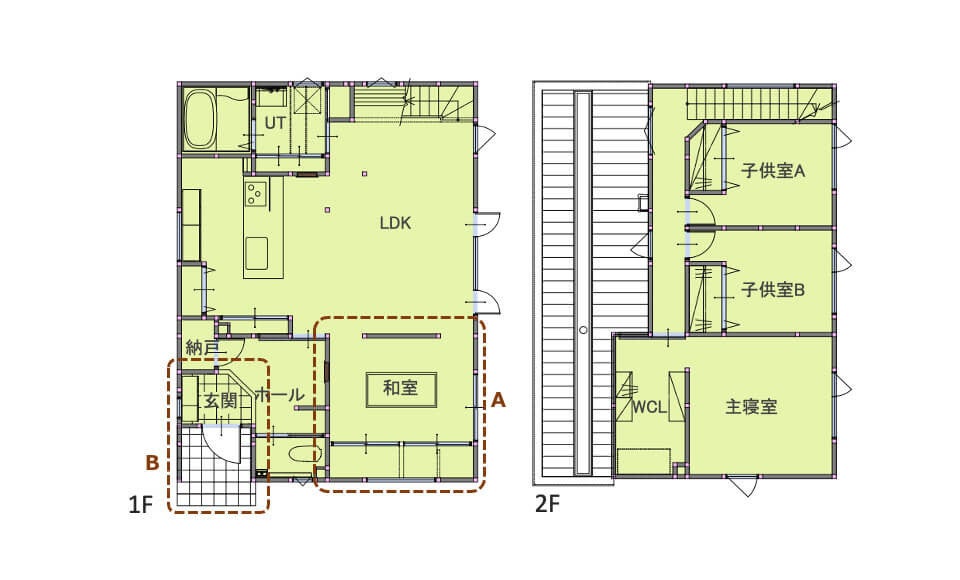
掘りごたつの有る和室は、仏間、客間として使用。収納は使いやすいように上部のみにし、下部には明り取り用の窓を設置。明るく清潔感のある居心地の良い和の空間となりました。

家の中心を横切る階段を配置変更したおかげで閉塞感のない見通しの良いLDKに。階段下のスタディスペースは、キッチンから子ども達を見守る事ができ安心。

北風と落雪で雪が溜まりやすかった玄関は、間取り変更と屋根形状の変更で改善。既存の和室を玄関にし、掃除のしやすい広々とした明るい玄関に。ステンドグラス風の玄関窓で明るさと優雅さを演出。

食糧庫は断熱工面の外に造るため、断熱ドアで区分けしました。

高性能建材の採用で現在求められる最高水準まで性能を引き上げ、20年後お子様が独立し施主父と2世帯で住むにも、次の世代へ引き継ぐにも、永く安心できる家づくりを提案。

before-平面図:海沿いの高台に建つこの地域は雪が多く、三角屋根の家なので雪が吹き溜まる事が悩み。他に、見通しの良いLDKや玄関の納戸、2階には主寝室が欲しい。長く住める家が理想です。との要望。

after-平面図:UA値0.3W/㎡・Kを実現する断熱性能に、内外装、設備機器を一新。20年先も住み次ぐ事の出来る、後に残せる高性能住宅としました。
リフォーム会社のコメント
【プランナー/安永千晶】
北風と落雪で雪が溜まりやすい玄関は間取り変更と屋根形状の変更で改善。
また、家の中心を横切る階段を配置変更することで、開放的な見通しが良いLDKを提案しました。
高性能建材の採用で現在求められる最高水準まで性能を引き上げ、20年後お子様が独立し施主父と2世帯で住む、また次の世代へ引き継ぐ、どちらの場合でも安心していただける家になりました。
【お施主様のお声】
転勤がきっかけで実家を引き継ぐことになりました。
生まれ育ったお気に入りの実家ですが、雪が多いうえ雪が吹き溜まることが悩み。
見通しが良いLDK・玄関の納戸・2階に主寝室を作り、長く住める家にリフォームしたいとプランナーに相談いたしました。
完成後、間取りや雰囲気が大きく変わり、お客様に驚かれます。
LDKが開放的になり、子ども達はのびのび使えて喜んでいます。
扉のない和室の掘りごたつや、階段下のスタディスペースは、キッチンから子ども達を見守る事ができて安心です。
玄関が変わって外階段も減り、父や子どもたちにも優しい家になり、以前の使い勝手が悪い家がフルリフォームで、土地と自分たちに最適な家に変わりました。
今後、冬期間の家の暖かさや雪の積もり方等がどう変わるか楽しみです。
――――――――――――――――――――――――――――――――――――
◆当社の事例集はこちらかもご覧いただけます。◆
https://www.hometopia.jp/gallery/
(URLを範囲選択、右クリックで『移動する』を選択で見ることが出来ます。)
――――――――――――――――――――――――――――――――――――
リフォーム概要
建物種別 | 戸建 |
---|---|
リフォーム部位・テーマなど | リノベーション(全面改修) | 屋根・外壁 | キッチン | 風呂 | トイレ | 洗面化粧台・洗面所 | リビング・ダイニング | 洋室・子供部屋 | 寝室 | 和室 | 玄関・ポーチ | 廊下・階段 | 床・フローリング | 収納 | 外構・エクステリア | ベランダ・バルコニー | 耐震 | 断熱・窓・省エネ | その他 |
参考価格 | 2700万円 (内訳:外部(屋根切替・外壁)650万円/玄関ホール200万円/LDK(キッチン含む)400万円/洗面脱衣室浴室200万円/トイレ50万円/階段ホール200万円/居室(4部屋)400万円/耐震断熱100万円/基礎100万円/電気設備等400万円) |
施工時期 | 2021年04月実施 |
メーカー名・製品名 | |
タグ |
土屋ホームトピア 北海道営業部 その他のリフォーム事例
マイページ登録されていない方
\ かんたん!1分で登録完了! /
会員限定4つのメリット
最大5社までまとめて見積りができる
一度に10社まで匿名で問い合せができる
気になる会社や事例写真を
保存して分析できる
リフォームに役立つ情報を
定期配信
<注意>
マイページ登録はリフォームを検討中のお客様を対象としたサービスです。
営業・商談・営利目的での「マイぺージ」登録やメッセージなどの送信はご遠慮ください。