
土屋ホームトピア 東北営業部 | リフォーム事例を見る | リノベーション(全面改修) 車椅子対応の快適リフォーム
写真のみ

【寝室】リビングと和室の仕切りを取り払い、寝室が最も明るい部屋になりました。

【リビング・ダイニング】寝室との間に可動式の間仕切りを設けました。

【洗面室】車いすに座ったまま使える洗面台を選びました。

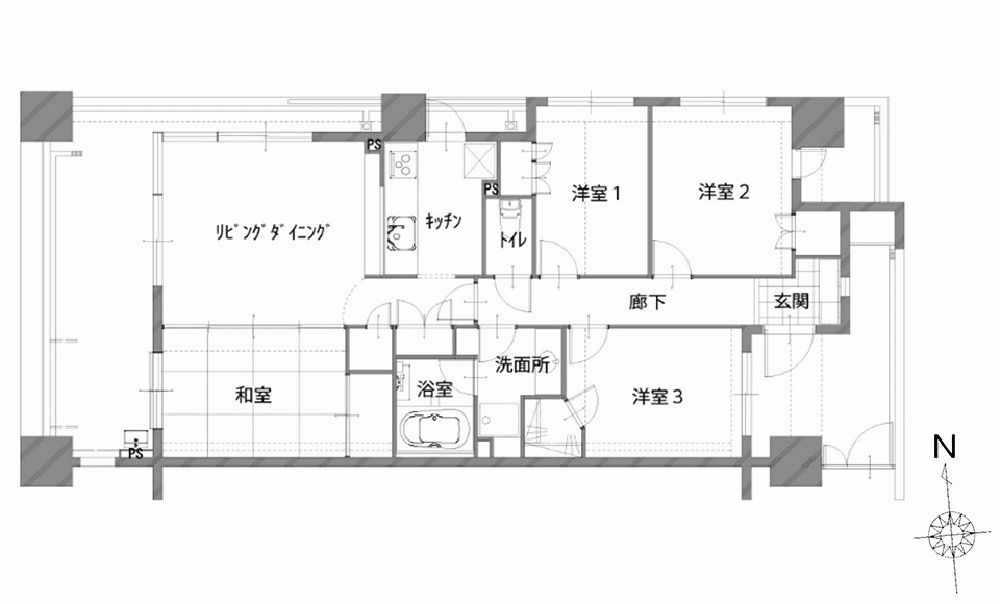
【トイレ】トイレを広げ、奥様が一人で回転できるように3方向に手すりを設置しました。

【廊下】廊下幅を90cmから100cmに広げ、手すりを新設しました。部屋の扉は引き戸に変更しました。

【玄関】玄関と廊下を広げたことで、車椅子に乗ったまま来客対応ができるようになりました。

【before】

【after】
リフォーム会社のコメント
【プランナー/米島一朗】
奥様の病気をきっかけにマンションへ移り住んだお施主様。
その後、奥様が車椅子と歩行器を併用する生活となり、不具合が増えてきたとのこと。お悩みは以下の通りです。
1.廊下が狭く車椅子での行き来ができない。
2.トイレが狭く身体を反転できない。
3.寝室が狭く、車椅子からベッドへの行き来が難しい。
これらの悩みをリフォームで改善したいとのことで、以下の改善・施工を行いました。
・廊下の壁全体を北側に幅10cm広げ、手すりを設置。
・トイレを広げ、開き戸を引き戸にし、室内の3方向に手すりを取り付けて自力で身体を反転できるように改善。
・リビングの一角を奥様の寝室とし、車椅子からベッドに移動できる十分な大きさを確保。
・リビングとの間に可動間仕切りを設け、状況に応じて使い分けができるようにしました。(来客時や就寝時は閉め、昼間は開けている。)
・バリアフリー対応(廊下幅の拡張 有効90cm→有効100cm、開き戸を引き戸に交換、トイレの大きさ拡大、車椅子対応の洗面化粧台)
【お客様のお声】
「トイレ、洗面所が使いやすくなりました。
廊下と玄関が広くなったことで、来客が来た際に車椅子に乗って玄関で対応できるようになりました。」(奥様)
―――――――――――――――――――――――――――――――――――― ◆当社の事例集はこちらからもご覧いただけます。◆ https://www.hometopia.jp/gallery/
(URLを範囲選択し、右クリックで「移動する」を選択するとご覧いただけます。) ――――――――――――――――――――――――――――――――――――
リフォーム概要
建物種別 | マンション |
---|---|
リフォーム部位・テーマなど | リノベーション(全面改修) | キッチン | 風呂 | トイレ | 洗面化粧台・洗面所 | リビング・ダイニング | 洋室・子供部屋 | 和室 | 玄関・ポーチ | 廊下・階段 | 床・フローリング | 収納 | 断熱・窓・省エネ | バリアフリー・介護 |
参考価格 | 1200万円 (内訳:キッチン250万円、トイレ130万円、洗面150万円、浴室330万円、照明30万円、内装200万円、その他110万円) |
施工時期 | 2023年05月実施 |
メーカー名・製品名 | |
タグ |
土屋ホームトピア 東北営業部 その他のリフォーム事例
マイページ登録されていない方
\ かんたん!1分で登録完了! /
会員限定4つのメリット
最大5社までまとめて見積りができる
一度に10社まで匿名で問い合せができる
気になる会社や事例写真を
保存して分析できる
リフォームに役立つ情報を
定期配信
<注意>
マイページ登録はリフォームを検討中のお客様を対象としたサービスです。
営業・商談・営利目的での「マイぺージ」登録やメッセージなどの送信はご遠慮ください。