
土屋ホームトピア 東北営業部 | リフォーム事例を見る | リノベーション(全面改修) 地上30階静かなるテレワーク室
写真のみ

明るく、窓からの眺望が最高なLDK

風呂・浴室を西側に移動させることで、明るいLDK空間が実現できました。

リビング側から見た奥の小上がりと右手キッチン。

同じくリビング側から見た右手小上がりと小上がり左手横の扉があるワークスペース。

ワークスペースは気密性・遮音性を高めるために外用樹脂サッシを採用しました。ワークスペース奥はリビング。

洗面・トイレなど、水回りはまとめて西側へ移動しました。

玄関天井は明るい色でアート空間の様に。ドアのデザイン選択と床をヘリボーンにすることで欧米の雰囲気に。

リフォーム前の音の状況とリフォーム後の音の状況の違い。

before

after
リフォーム会社のコメント
【プランナー/米島一朗】
6年前に中古マンション(築12年)を購入、いずれリフォームと思っていたお施主様でしたが、コロナ禍で在宅勤務となった事で予想外の問題が発覚。コロナ禍で隣接する病院のヘリコプター離発着が増え、ヘリの音でオンライン会議や商談がその都度中断してしまうという問題が。
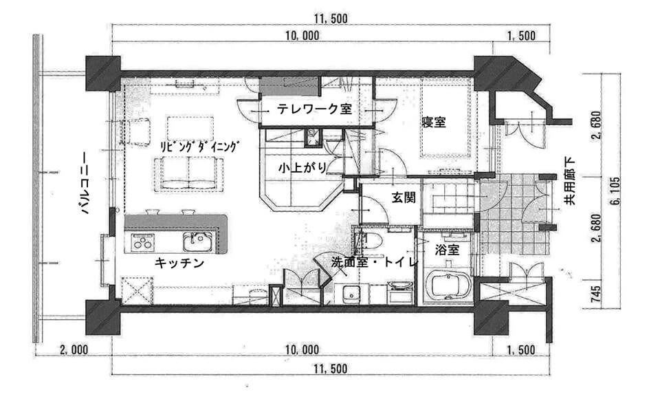
また、現状の間取りだと生活する場と仕事の場が一緒になってしまい、大きなストレスを感じる様になってしまっていた為、真東にLDK空間、水廻りは共用廊下側にまとめて配置しました。
さらにリビングダイニングと寝室の間に音に配慮したテレワーク室を設け、生活と仕事の場所を分けました。
テレワーク室は気密性・遮音性を高めるため外用樹脂サッシを採用し、換気用に寝室側に自然吸気口を設置したことで、リフォーム前のヘリコプター離着時の室内騒音が80dBから50dBへ低減する事ができました。
【お施主様のお声】
以前はキッチン横のカウンターで長時間仕事をしていて、生活と仕事の区別が出来ずストレスを感じていましたが、間取りを変えて生活と仕事のメリハリがつくようになりました。
趣味でお菓子作りを始めてキッチンに立つ時間が増えました。
料理を作りながら夜景やTVを見て生活を楽しんでいます。
――――――――――――――――――――――――――――――――――――
◆当社の事例集はこちらかもご覧いただけます。◆
https://www.hometopia.jp/gallery/
(URLを範囲選択、右クリックで『移動する』を選択で見ることが出来ます。)
――――――――――――――――――――――――――――――――――――
リフォーム概要
建物種別 | マンション |
---|---|
リフォーム部位・テーマなど | リノベーション(全面改修) | キッチン | 風呂 | トイレ | 洗面化粧台・洗面所 | リビング・ダイニング | 寝室 | 和室 | 玄関・ポーチ | 廊下・階段 | 床・フローリング | 収納 | 断熱・窓・省エネ | バリアフリー・介護 | その他 |
参考価格 | 1183万円 (内訳:リビングダイニング200万円 キッチン150万円 トイレ・洗面化粧室180万円 お風呂250万円 テレワーク室150万円 寝室180万円 玄関他73万円) |
施工時期 | 2021年01月実施 |
メーカー名・製品名 | |
タグ |
土屋ホームトピア 東北営業部 その他のリフォーム事例
マイページ登録されていない方
\ かんたん!1分で登録完了! /
会員限定4つのメリット
最大5社までまとめて見積りができる
一度に10社まで匿名で問い合せができる
気になる会社や事例写真を
保存して分析できる
リフォームに役立つ情報を
定期配信
<注意>
マイページ登録はリフォームを検討中のお客様を対象としたサービスです。
営業・商談・営利目的での「マイぺージ」登録やメッセージなどの送信はご遠慮ください。