
土屋ホームトピア 東北営業部 | リフォーム事例を見る | リノベーション(全面改修) これからも住みたいマンション
写真のみ

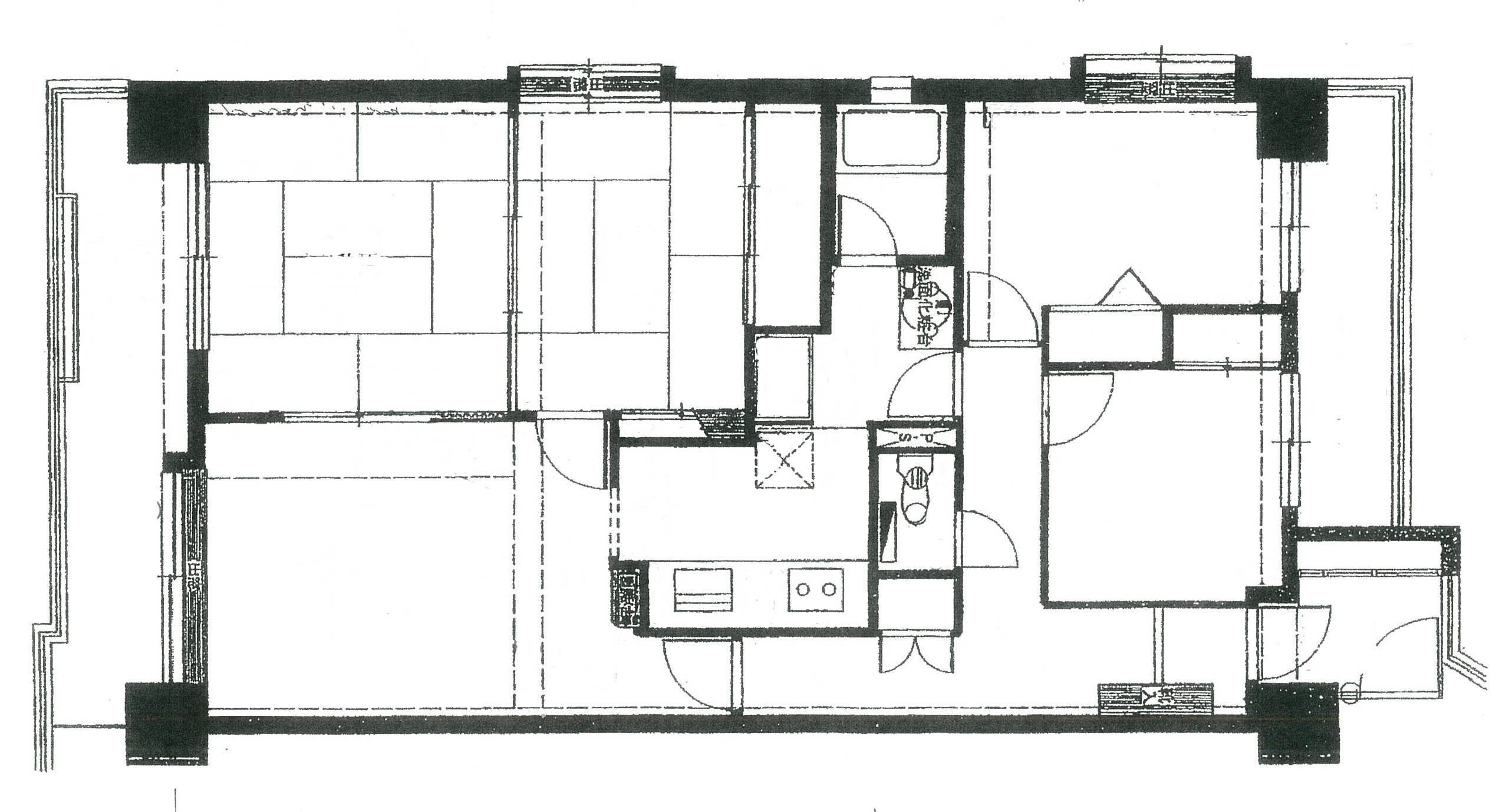
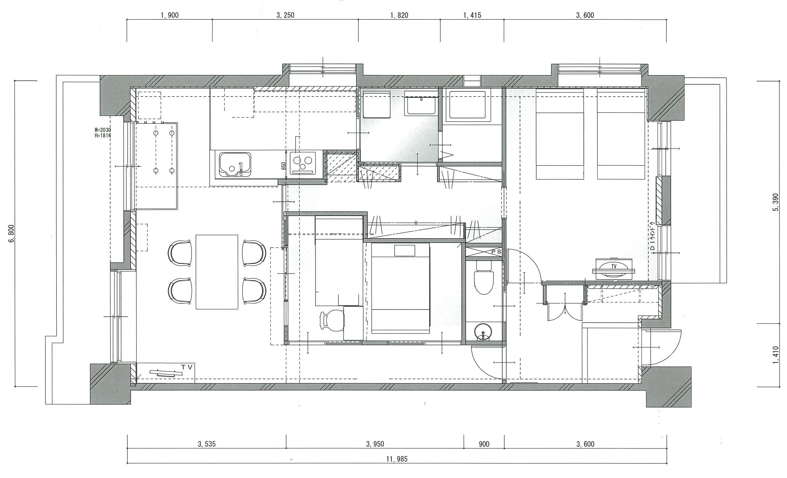
キッチン、リビングダイニング、隣接してい洋室に対応するため冷暖房エアコンを設置。

隣接している洋室は、無窓居室のになるのを避けるために2室採光により有効な採光窓(開口幅の1/2を随時開放)を設けた。(仙台市建築審査課確認済み)【用途地域は第2種中高層住居専用地域】

通風に配慮したウォークスルーのクローゼットは裏動線にもなっている。

結露の激しかった西側と北側窓開口部はDI窓(換気と熱交換機能をもつ)を設置する事で、結露だけではなく換気+カビ対策に。

クローゼットの入り口はあえて建具を設けず、通風に配慮。

既存の洋室部分を削り、玄関を広くとることで収納も多く出来るように。明るく、開放感のある玄関に生まれ変わりました。

壁裏、既存の収納部分を削り少し広くなったトイレは明るくゆとりができるように。

トイレ内便器正面の収納棚+手洗い場

before

after
リフォーム会社のコメント
【プランナー/米島一朗】
11年前に中古マンションを購入し、家族4人で住んでいたお施主様。
築32年マンションは住機器も古く換気機能が低下、窓結露と黒カビ発生。
家の間取りも使いづらい為、室内の空気環境を改善し、間取りも見直して長く住んでいきたいというお施主様のご要望でしたので、外周部には断熱パネル(30mm)施工、断熱内窓を設置し断熱性能向上いたしました。
住宅設備機器交換とともにDI窓(熱交換換気窓)を設置し温熱環境改善。
家事動線に配慮し物干しバルコニーと洗面脱衣室にキッチンを隣接、家事動線を短縮いたしました。
【お施主様のお声】
(主人)「毎日吸う空気が違う。結露や黒カビは無い。1月3,700円、2月1,500円、3月1,200円、4月1,200円、前年比光熱費が削減してる。」
(奥様)「家全体が暖かくなり、家事(洗濯、物干し)も使いやすい。」
(娘)「通り抜けできるクローゼットが気に入っている。」
――――――――――――――――――――――――――――――――――――
◆当社の事例集はこちらかもご覧いただけます。◆
https://www.hometopia.jp/gallery/
(URLを範囲選択、右クリックで『移動する』を選択で見ることが出来ます。)
――――――――――――――――――――――――――――――――――――
リフォーム概要
建物種別 | マンション |
---|---|
リフォーム部位・テーマなど | リノベーション(全面改修) | キッチン | 風呂 | トイレ | 洗面化粧台・洗面所 | リビング・ダイニング | 洋室・子供部屋 | 寝室 | 和室 | 玄関・ポーチ | 廊下・階段 | 床・フローリング | 収納 | 断熱・窓・省エネ | バリアフリー・介護 | 自然素材 |
参考価格 | 1100万円 (内訳:お風呂160万円 洗面所100万円 トイレ100万円 キッチン250万円 LDK150万円 玄関・ホール100万円 その他洋室240万円) |
施工時期 | 2020年01月実施 |
メーカー名・製品名 | |
タグ |
土屋ホームトピア 東北営業部 その他のリフォーム事例
マイページ登録されていない方
\ かんたん!1分で登録完了! /
会員限定4つのメリット
最大5社までまとめて見積りができる
一度に10社まで匿名で問い合せができる
気になる会社や事例写真を
保存して分析できる
リフォームに役立つ情報を
定期配信
<注意>
マイページ登録はリフォームを検討中のお客様を対象としたサービスです。
営業・商談・営利目的での「マイぺージ」登録やメッセージなどの送信はご遠慮ください。