
有限会社 原田建築口コミ評価
口コミ掲載日 : 2026/03/16
K.Y さん (60歳代以上/男性/愛知県 豊田市)
- 建物種別
- 戸建
- 参考価格
- 1,000万円以上
- 築年数
- 31年以上
- 工期
- 3ヶ月以上
- 完成年月日
- 2024年08月
口コミ総合評価
4.8 / 5.0
- おすすめ度
- 5
- 提案力
- 5
- コミュニケーション
- 5
- 価格
- 4
- マナー
- 5
- 仕上がり
- 5

項目別評価
|
おすすめ度 5/5 |
おすすめします。 |
|---|---|
|
提案力 5/5 |
簡単な条件でなかったと思いますが、上手な提案をしてくれました。 |
|
コミュニケーション 5/5 |
2世帯リノベという事だったので、親、子供それぞれとしっかりコミュニケーションとってくれました。 |
|
価格 4/5 |
増築を含んだリノベーションだったので、これくらいだと思います。 |
|
マナー 5/5 |
問題なし。 |
|
仕上がり 5/5 |
中外とすごく良くなりました。 |
リフォーム会社からのコメント
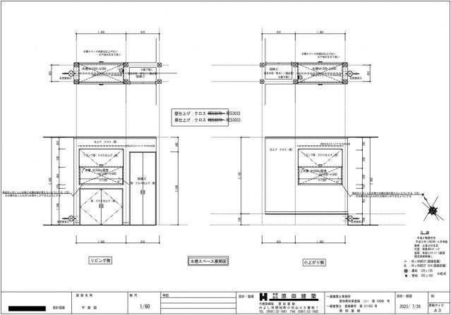
娘さんご夫婦との同居することになったため2世帯で使いやすくしたいとのご希望でした。西側の土地に余裕があるので親世帯のスペース増築をしながた築28年木造2階建て住宅のリノベーションをしました。熱帯魚を飼う水槽のスペースをつくりたいというご希望も相談させて頂きました。
補助金の申請はしませんでしたが、リノベーション範囲についてはきちんと計算し耐震補強を行いました。
リフォーム写真を見る
リフォーム後
リフォーム前
もどる
新規登録無料
マイページ登録されていない方
\ かんたん!1分で登録完了! /
会員限定4つのメリット
最大5社までまとめて見積りができる
一度に10社まで匿名で問い合せができる
気になる会社や事例写真を
保存して分析できる
リフォームに役立つ情報を
定期配信
<注意>
マイページ登録はリフォームを検討中のお客様を対象としたサービスです。
営業・商談・営利目的での「マイぺージ」登録やメッセージなどの送信はご遠慮ください。

自由コメントこの会社に決めた理由、検討中の方へのアドバイス等
増築をしながらの2世帯リノベという事で、上手にできるか心配をしてましたが、すごく良くしてもらえました。