
有限会社 夢木房アピールポイント
4点リフォーム(キッチン・浴室・洗面・トイレ)の事例
台所・浴室・脱衣・居間改修工事

リフォーム前は吊戸棚が高く大変でしたが、昇降式の吊戸棚や、食器棚のセットで収納も楽に出来る様になりました。

面積は変わっていませんが、開き戸から引き戸に変更し、洗い場の洗面台もなくなり、広く感じられる浴室になりました。

すっきりした洗面ユニット

パナソニックのアラウーノです。便器にロータンクがないので、別に手洗いをつけました。
築50年という古い田舎造りの家で、ほとんど手を加えていない、本当に台所も土間の状態で、 50cmの段差を毎日奥様が動いていらっしゃいました。 お風呂も1坪と大きいのですが、浴槽が小さく洗い場に洗面台もあって使い勝手が悪いのでお互い独立する提案をしました。
増築リフォームの事例
子供部屋を広くして、水廻りを取替え

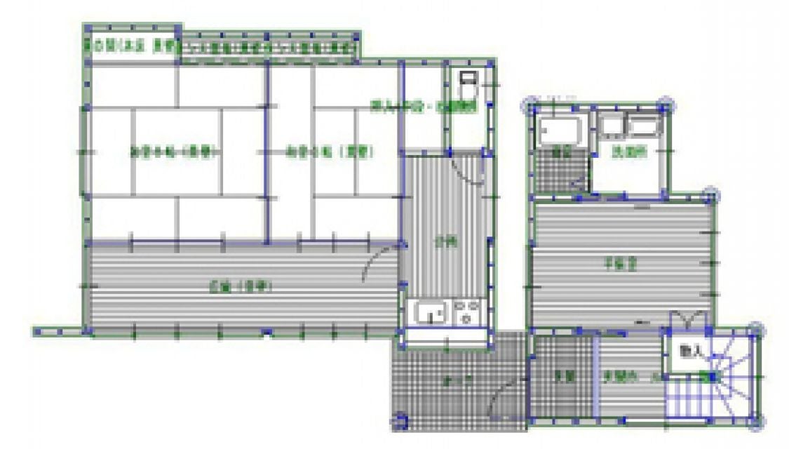
リフォーム前(1階平面図)

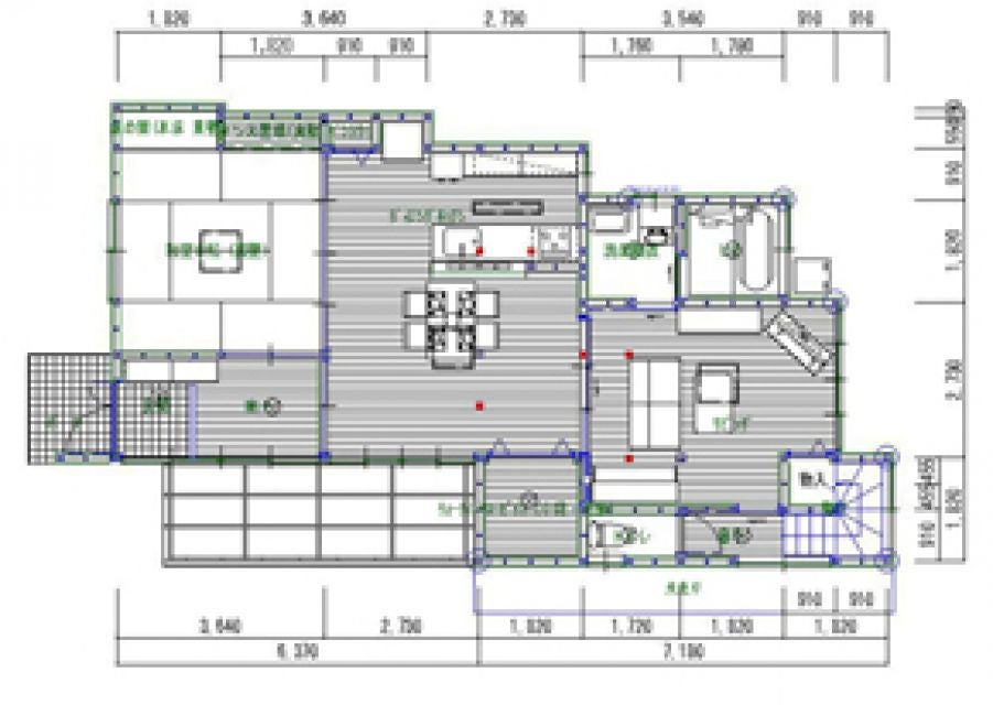
リフォーム後(1階平面図)

リフォーム前は和室

リフォーム後はLDKに
現状を見せていただくと、2階にキッチン・1階に子供部屋と通常とは反対の間取りでした。子供の成長の過程を考えると、親が子供の顔を確認できるように1階にLDK、2階に寝室・子供部屋を提案させて頂きました。
スタッフ紹介 その1
新築からリフォームまで、安心しておまかせください

『代表取締役:油田 秀雄』 ●広島市生まれ ●広島工業大学工学部建築学科卒業 ●1級建築施工管理技士・2級建築士 ●耐震技術認定者 ●血液型/おおらかな0型 ●趣味/釣り、スキー、日曜大工、仕事
スタッフ紹介 その2
新築からリフォームまで安心しておまかせください

『経理:油田 慈子(やすこ)』 ●大阪府生まれ ●血液型/ロマンチストなO型 ●趣味/パンケーキ作り、ビーズ、トールペイント
夢木房の仲間たち その1
大工さん

『大工:安達さん』 ●シャイでイケメンの大工さんです。仕事は早く丁寧です。とても頼りになる親方です。
リフォームの仕事というのは、営業マン(プランナー)による提案力も大切ですが、同じように現場で工事をする職人の技術力も必要不可欠です。
夢木房の仲間たち その2
左官さん 畳職人さん 板金職人さん

『畳職人:高橋さん』 ●職人気質の頑固親父です。自分が納得した商品しかお薦めしません。写真映りは怖いですが、優しいですよ!

『樋・板金工事:折出板金 折出親子』 ●親父は年なので私が頑張っています。親父から教わったことを現場に活かして頑張っています。
夢木房の仲間たち その3
電気 水道 塗装工事

『水道工事:フリート 高橋さん』 ●自分が納得がいくまで、現場を離れません。常にお客様の立場で物事を考えます。

『塗装工事 丸子塗装工業:丸子さん』 ●一級塗装技能士・特殊塗装マイスターの私があなたのお家を守ります。
耐震リフォーム
1階店舗内装壁 耐震補強工事

耐震調査をした結果、この壁に補強を入れるとバランスが取れ建物が強くなります

NEWかべつよしという壁の補強材で、通常の筋かい補強よりも3.5倍も強い補強壁になります。3か所筋かい壁補強をしないといけない所を1か所で補強ができるということです。

1つの柱に3か所補強用プレートを取り付け補強材を止めます。そうすることによって柱間の壁が強固になります。外壁に面しているので断熱材は欠かせません

耐震ボードを10センチピッチにビス止めをして補強完了です。この上にはクロスが張れないのでベニヤで重ね張りをしてクロス張りで仕上げます。
建物の耐震が心配と言うことで、日本木造住宅耐震補強事業者協同組合に耐震調査の依頼がありました。当社が組合員になっている為、調査依頼がありました。
1階が店舗で2階が住居でした。2階で生活する為に、ご両親が心配され、今回リフォームの計画があり、いっしょに工事をしたいというご要望で壁に対して補強をしました。
床下シロアリ駆除工事
シロアリ駆除をしないと被害拡大となるので、防除処理をする必要があるとご提案しました。

穴あけ

防腐剤加圧注入

防腐剤散布

穴埋め
畳の下からシロアリがわいて出てきていると電話があり、床下の調査をして見ると、いたるところに蟻道(シロアリが土で作るトンネル)があり地面から木部に進入してきた証拠が発見されました。
早速、シロアリ駆除をしないと被害拡大となるので、防除処理をする必要があるとご提案しました。
もう一つ、湿気がひどいので、調湿・断熱・防臭に効果のある『セラクリーン』を床下に敷き並べることをお薦めしました。
マイページ登録されていない方
\ かんたん!1分で登録完了! /
会員限定4つのメリット
最大5社までまとめて見積りができる
一度に10社まで匿名で問い合せができる
気になる会社や事例写真を
保存して分析できる
リフォームに役立つ情報を
定期配信
<注意>
マイページ登録はリフォームを検討中のお客様を対象としたサービスです。
営業・商談・営利目的での「マイぺージ」登録やメッセージなどの送信はご遠慮ください。