
株式会社光テック | リフォーム事例を見る | リノベーション(全面改修) リノベde田舎移住計画
写真のみ


キッチンからはリビング、外の景色を見ながら24時間お菓子作りが出来るようにパントリーの内部も拘って造作しました。

奥様の夢のキッチンを実現する為に耐震上抜けられないコの字型の収納をメリットに生かしてキッチンダイニング、リビングのゾーン分けをしました。






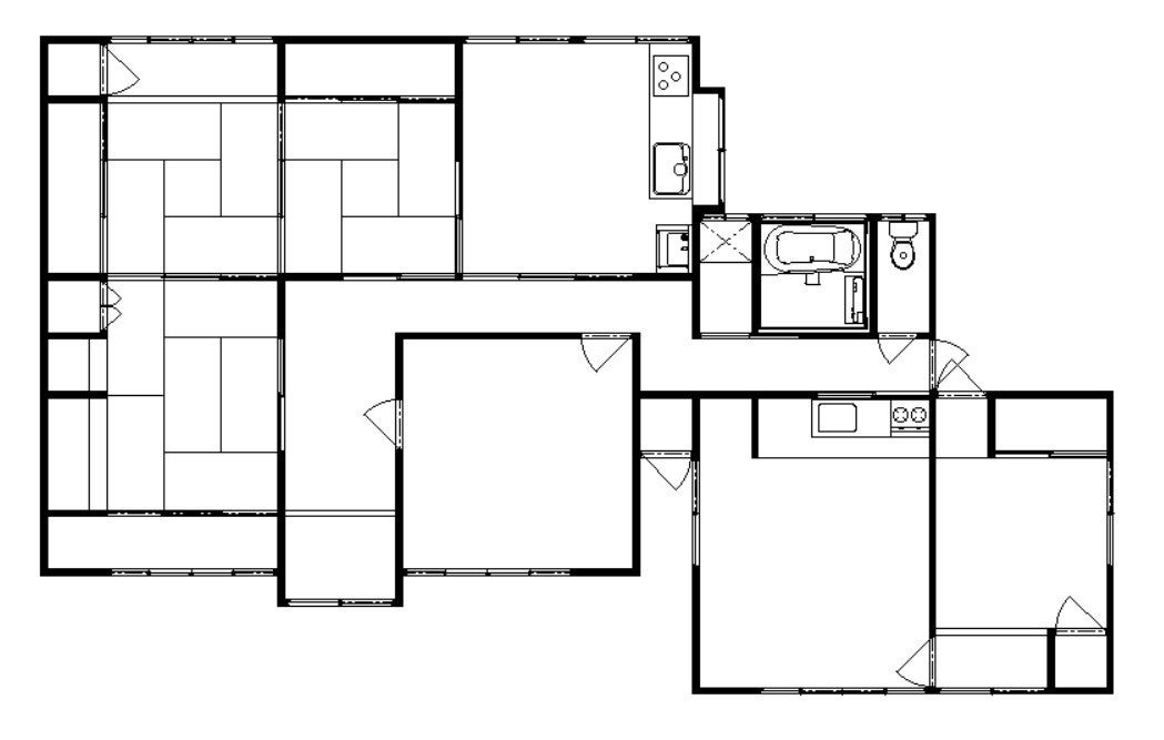
増築した赤い点線部分は、母屋から20cm程度下がっており今回のリノベでレベルを合わす事や、耐震、断熱を向上させる事を基本としました。

構造上抜けられなかったコの字型の耐力壁をメリットに!
リフォーム会社のコメント
築45年の中古物件があるとの事で耐震を含めてフルリノベーションをする事に!東京に住む娘さんが帰省される事も考慮してのプランニングを考えました。奥様は24時間キッチンの前に立っていたい!という程、お菓子作りをされる事が好きな奥様でした。
(施主ご感想)当初は果たしてこの家をリフォームしてもちゃんと住めるようになるのか?不安でしたが、補助金も利用して耐震改修も出来て本当に良かったです。キッチンやダイニングテーブルの配置も使い勝手が良いし、コの字型の構造体が少し目隠しになって良い仕事をしてくれています。これからも大好きなお菓子を作りながらのんびりと暮らしていきたいです。
リフォーム概要
建物種別 | 戸建 |
---|---|
リフォーム部位・テーマなど | リノベーション(全面改修) | 断熱・窓・省エネ | バリアフリー・介護 |
参考価格 | 1700万円 |
施工時期 | 2021年10月実施 |
メーカー名・製品名 | |
タグ |
|
株式会社光テック その他のリフォーム事例
マイページ登録されていない方
\ かんたん!1分で登録完了! /
会員限定4つのメリット
最大5社までまとめて見積りができる
一度に10社まで匿名で問い合せができる
気になる会社や事例写真を
保存して分析できる
リフォームに役立つ情報を
定期配信
<注意>
マイページ登録はリフォームを検討中のお客様を対象としたサービスです。
営業・商談・営利目的での「マイぺージ」登録やメッセージなどの送信はご遠慮ください。