
植村産業株式会社(ue_bo design) | リフォーム事例を見る | リノベーション(全面改修) 温もりのあるナチュラルな住宅へ
写真のみ

before

after

グレー色で塗装しました。太陽の光に照らされることで、ホワイトに近い明るい色の外観になりました。 外壁に合わせて階段も塗装し、滑り止めも交換しています。

電球色のペンダント照明2灯が玄関の温かな空間づくりを際立たせています。

玄関にあった下駄箱は撤去し、玄関横にSICを設けました。 SICを設けたことで、玄関に靴が広がることがなく常に整った状態を保てます。

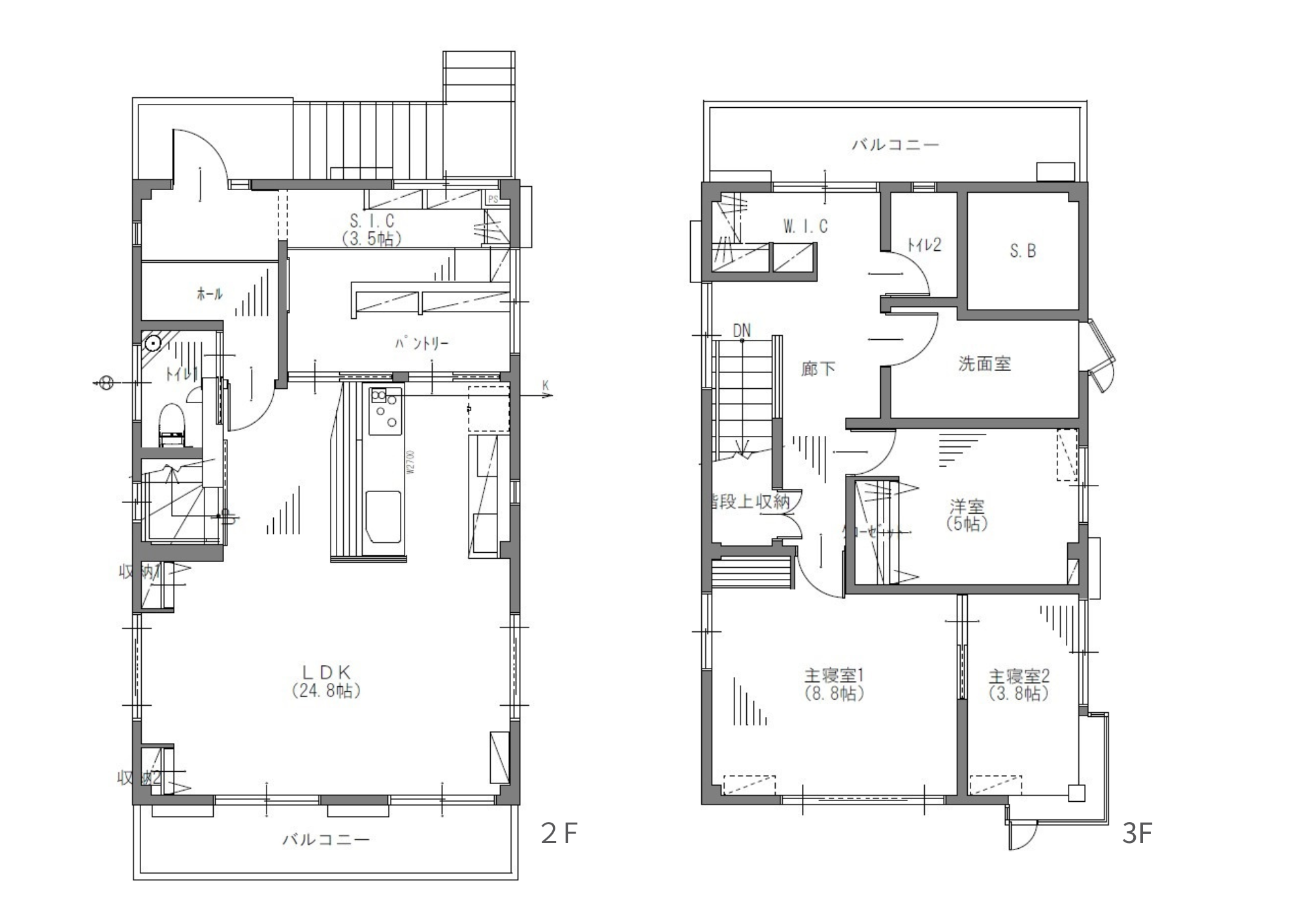
2Fの寝室や洋室だったお部屋を全て解体し、LDKにリフォームしました。 濃い床材から、明るめ床材に変えたことで広々と開放感のあるリビングになりました。

リフォーム前は、壁付けキッチンで閉鎖的でしたが、明るく開放感のあるキッチンへとリフォームしました。 TOCLASのBbのキッチンを設置しました。

タンク付きトイレからタンクレストイレに交換しました。 床には大理石調のフロアタイル、壁にはグレージュのクロスを貼りスッキリと落ち着いた雰囲気のトイレになりました。

階段にはリフォーム階段を使用しました。 階段の架け替えが難しい場合は、リフォーム階段を使うことで見た目を美しく出来ます。

3FのLDKを主寝室にリフォームしました。 床と壁・天井クロスの彩度を抑え、落ち着いた雰囲気の主寝室になりました。
リフォーム会社のコメント
築30年以上と全体的に古くなったため外装・内装のリフォームをご依頼頂きました。
リフォーム前は3FにLDK、2Fに主寝室等の各居室がある間取りでした。今回は、家事導線や収納量等を重視しながら2FにLDK、3Fに各居室を配置するプランでご提案しました。また、現地調査時に2Fの寒さを感じたため、断熱リフォームも併せてご提案し、内窓設置・断熱材交換工事も行っています。
暗かった2Fも床材や建具、クロスの色を工夫することで明るい開放感のあるLDKに変化しました。
リフォーム概要
建物種別 | 戸建 |
---|---|
リフォーム部位・テーマなど | リノベーション(全面改修) | 屋根・外壁 | キッチン | トイレ | リビング・ダイニング | 洋室・子供部屋 | 寝室 | 玄関・ポーチ | 廊下・階段 | 床・フローリング | 収納 | ペット | ベランダ・バルコニー | 断熱・窓・省エネ |
参考価格 | 2000万円 |
施工時期 | 2023年09月実施 |
メーカー名・製品名 | キッチン トクラス(Bb) トイレ TOTO(ネオレスト) | 床 LIXIL(ラシッサD) | |
タグ |
植村産業株式会社(ue_bo design) その他のリフォーム事例
マイページ登録されていない方
\ かんたん!1分で登録完了! /
会員限定4つのメリット
最大5社までまとめて見積りができる
一度に10社まで匿名で問い合せができる
気になる会社や事例写真を
保存して分析できる
リフォームに役立つ情報を
定期配信
<注意>
マイページ登録はリフォームを検討中のお客様を対象としたサービスです。
営業・商談・営利目的での「マイぺージ」登録やメッセージなどの送信はご遠慮ください。