
フィットハウジング | リフォーム事例を見る | リノベーション(全面改修) 小さなお子様に目の届く間取
写真のみ

間仕切りを撤去し明るいキッチン

キッチン手元照明はダクトレールを付けてお洒落に

キッチン背面の可動棚

お子様に目の届く畳スペース

TOTOミッテ L型

洗面化粧台 トクラスエポック

寝室アクセントクロス

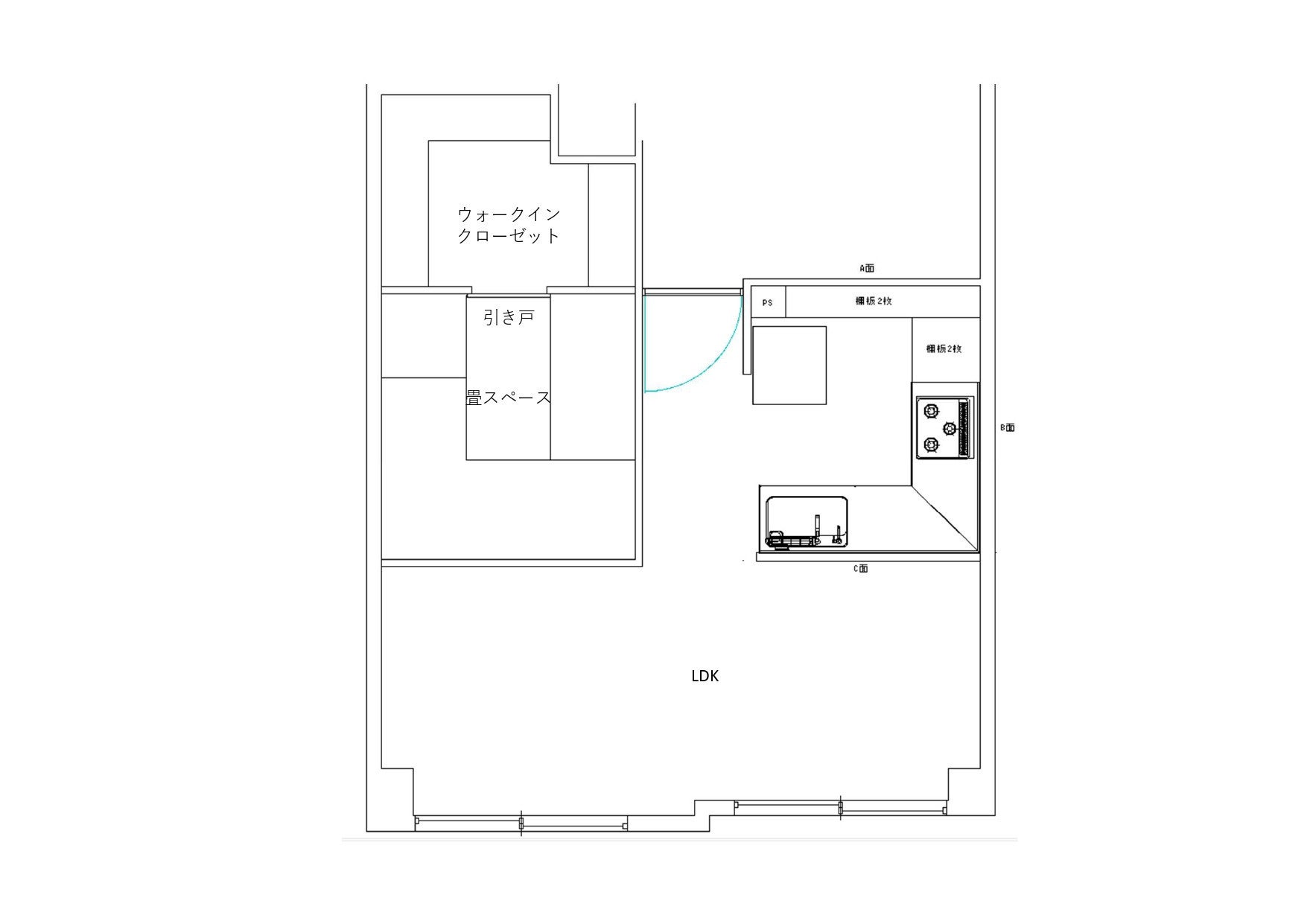
間取り図

ユニットバス TOTOWY

入り口もクローゼットも引き戸に変更
リフォーム会社のコメント
お客様のご希望は家事をしながらでも小さなお子様に目の届くリフォームでした。
今回はキッチンと和室の間仕切りを撤去しキッチンからリビングが全て見渡せるように
間取の変更をしました。
小さなお子様がケガをしないよう敢えて畳を残し安全な子育てスペースとしました。
間取変更以外にも水廻り改修とクロス張替の希望がありましたのでご予算を効率よく
使用するためにフローリンは既存をそのまま利用。
既存を利用したリフォームは全てをリフォームするより施工もプランニングも難易度が高くなりますが私の細かい希望にめげずに、何時もの大工さんが綺麗に納めてくれました。
子育ては物が大量に増えるので既存の和室部分の一部をウォークインクローゼット
に改修し子育てに必要な物やスーツケースなどの大物も収納できるようにしました。
マンションは収納スペースが少ないケースが多いので、子育て世帯以外の方にも今回の間取はお勧めの間取となります。私自身も子育て中ですので情報交換しながらお客様と一緒に子育てリフォームを楽しみながら施工出来ました。
リフォーム概要
建物種別 | マンション |
---|---|
リフォーム部位・テーマなど | リノベーション(全面改修) | キッチン | 風呂 | トイレ | 洗面化粧台・洗面所 | リビング・ダイニング | 洋室・子供部屋 | 和室 |
参考価格 | 430万円 (内訳:浴室70万円 トイレ15万円 洗面所35万円 キッチン135万円 内装175万円) |
施工時期 | 2022年03月実施 |
メーカー名・製品名 | キッチン TOTO(ミッテ) 洗面台 トクラス(エポック) | トイレ LIXIL(アメージュ便器) | |
タグ |
フィットハウジング その他のリフォーム事例
マイページ登録されていない方
\ かんたん!1分で登録完了! /
会員限定4つのメリット
最大5社までまとめて見積りができる
一度に10社まで匿名で問い合せができる
気になる会社や事例写真を
保存して分析できる
リフォームに役立つ情報を
定期配信
<注意>
マイページ登録はリフォームを検討中のお客様を対象としたサービスです。
営業・商談・営利目的での「マイぺージ」登録やメッセージなどの送信はご遠慮ください。