
レスタホーム セン | リフォーム事例を見る | トイレ ホテルのような空間トイレ
写真のみ










リフォーム会社のコメント
トイレをリフォームされるきっかけとなった出来事は、ウェシュレットから水が漏れてきたということでしたが、他の要因として
①もっと楽に手を洗いたい→トイレはタンクレスで、別に手洗い器を出入口側につけたい
②狭い→どうにかなりませんか?
③フローリングの水染みが気になる→水が染み込まない材質希望
等があげられました。
↓
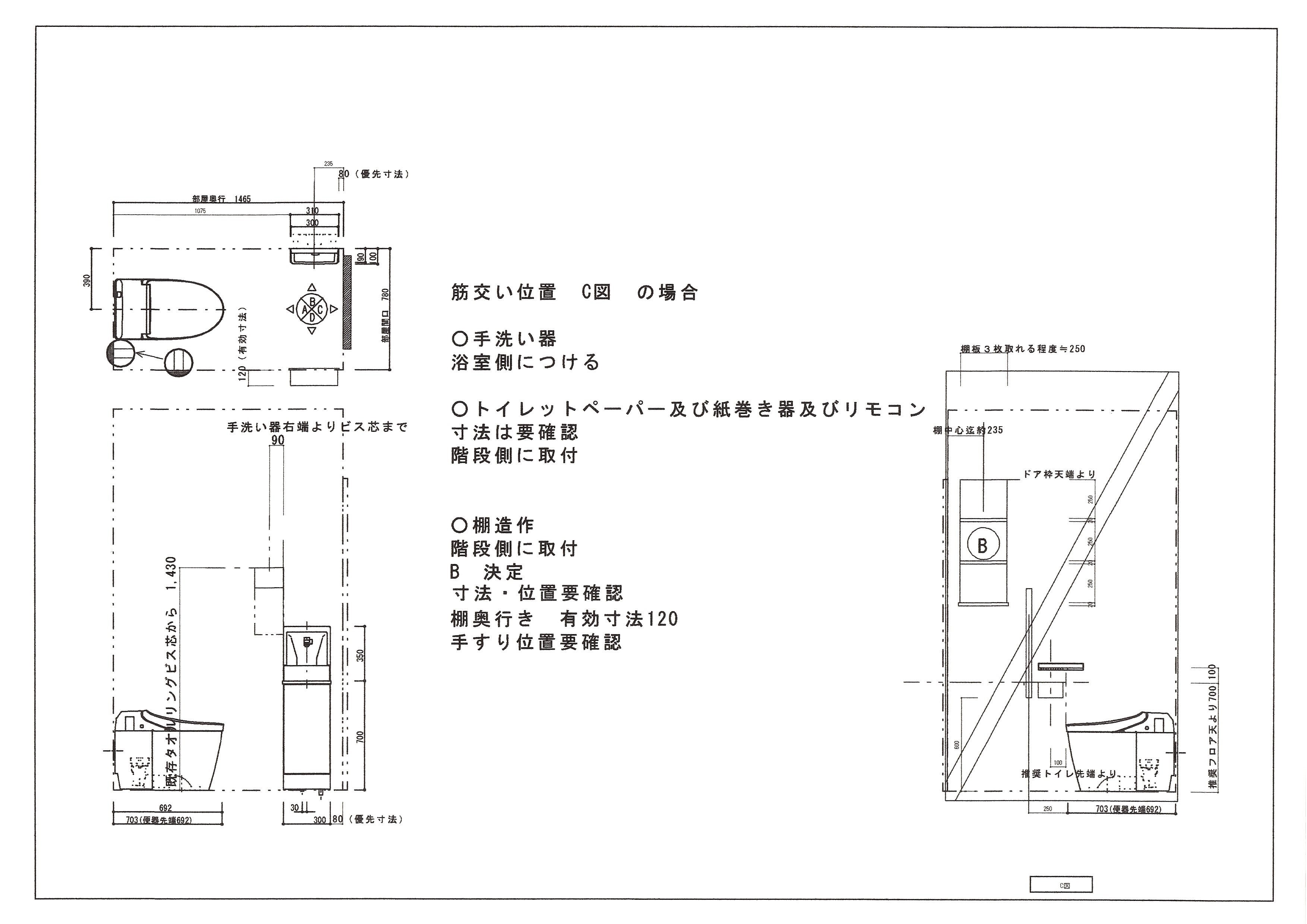
〇狭さについてはトイレの奥行を広げれるかどうか?
出窓風カウンターの窓下の壁に意味がないようなので、出窓風をやめてしまい、普通の窓にして(カウンターは窓台に加工して再利用)、トイレの奥行の確保をすることにしました。
〇構造強度(筋交いの移動などはしない)はさわらず、埋め込みの手洗い器と埋め込みの棚(出窓風のカウンターに置いている小物の置く場所確保)をつけたいとのご要望。
図面上からは筋交いがあるのわかりましたので、同じ面に上下につけることは難しかしく、ここはいろいろお施主様と手洗い器と棚のレイアウトを考え、最終完成写真のようになりました。
〇掃除のしやすさもどうにかならないかということで、同じTOTOのネオレストの中でも床から出ている給水配管を隠蔽できるトイレのグレードを提案させていただきました。
床の排水の位置をさわらなければなりませんでしたが、この提案が一番喜ばれてらっしゃいました。
既存のアクセサリーを再利用し、ホテルのような落ち着いたトイレ空間にしたいというのが最後のミッション・・・、完成写真となりました。
リフォーム概要
建物種別 | 戸建 |
---|---|
リフォーム部位・テーマなど | トイレ |
参考価格 | 80万円 (内訳:トイレ工事80万円) |
施工時期 | 2021年12月実施 |
メーカー名・製品名 | 衛生陶器 TOTO(ネオレストDH2) 手洗い器 TOTO(スリムシリーズ) | |
タグ |
レスタホーム セン その他のリフォーム事例
マイページ登録されていない方
\ かんたん!1分で登録完了! /
会員限定4つのメリット
最大5社までまとめて見積りができる
一度に10社まで匿名で問い合せができる
気になる会社や事例写真を
保存して分析できる
リフォームに役立つ情報を
定期配信
<注意>
マイページ登録はリフォームを検討中のお客様を対象としたサービスです。
営業・商談・営利目的での「マイぺージ」登録やメッセージなどの送信はご遠慮ください。