
株式会社カシワバラ・コーポレーション RD本部 山口東店 | リフォーム事例を見る | トイレ 介護リフォーム(トイレ)
写真のみ

介護者の方が使いやすいように、照明・換気扇・トイレ・手洗いすべてセンサー式を選定しました。消し忘れ・流し忘れ・出しっぱなしになることがありません。

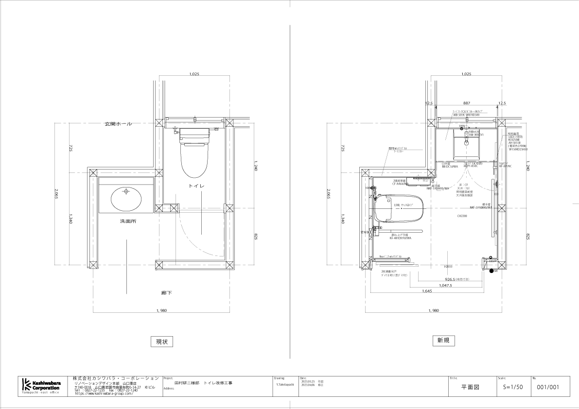
施工前 元々は洗面とトイレは独立していました。トイレは洗面所右手のドアです。

いずれ車椅子になっても使いやすいようにドアは3枚引き戸としました。

トイレの壁は全てキッチンパネルで、清掃性が良いです。1色では寂しいので、上下のツートンにしました。床は抗菌・消臭機能のあるクッションフロアです。

施工前 施工後の平面図
リフォーム会社のコメント
もう10年以上のお付き合いのお客様です。介護保険を使ってのリフォームで、配置や商品選定など全面的に当社にお任せいただきました。
リフォーム概要
建物種別 | 戸建 |
---|---|
リフォーム部位・テーマなど | トイレ | バリアフリー・介護 |
参考価格 | 165万円 |
施工時期 | 2023年05月実施 |
メーカー名・製品名 | トイレ LIXIL(プレアスLS) |
タグ |
株式会社カシワバラ・コーポレーション RD本部 山口東店 その他のリフォーム事例
もどる
新規登録無料
マイページ登録されていない方
\ かんたん!1分で登録完了! /
会員限定4つのメリット
最大5社までまとめて見積りができる
一度に10社まで匿名で問い合せができる
気になる会社や事例写真を
保存して分析できる
リフォームに役立つ情報を
定期配信
<注意>
マイページ登録はリフォームを検討中のお客様を対象としたサービスです。
営業・商談・営利目的での「マイぺージ」登録やメッセージなどの送信はご遠慮ください。