
浪速リモデリング株式会社 | リフォーム事例を見る | キッチン 間口を広げて快適なキッチンへ
写真のみ




リフォーム会社のコメント
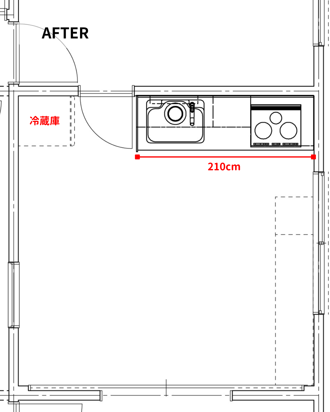
調理スペースを広くするため、冷蔵庫を移動して
キッチンの間口を広げたリフォーム工事です。
ガスコンロは安全のためIHに変更。
レンジフードはお掃除が楽な商品です。
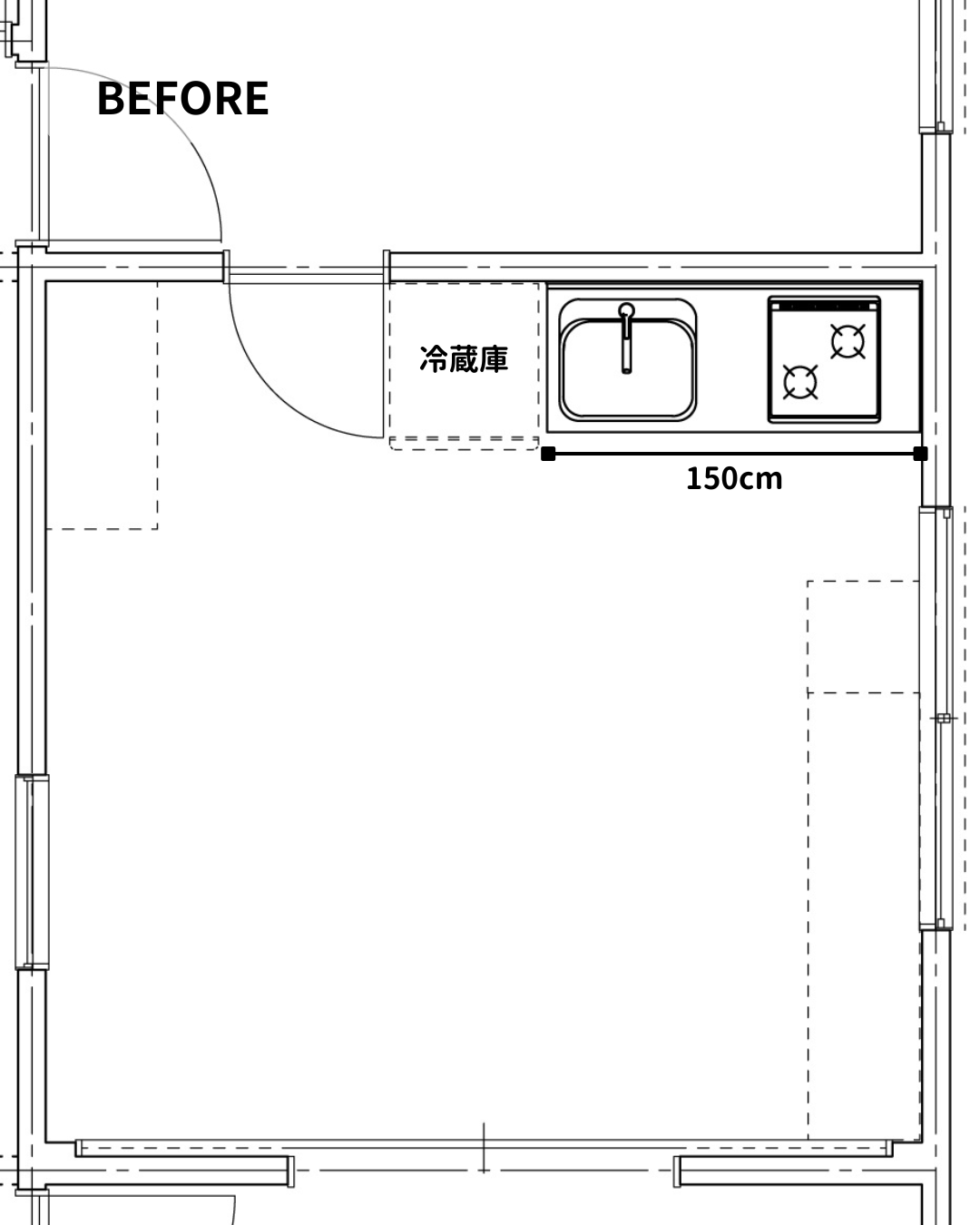
改修前はキッチンの間口が150㎝しかなく、
シンクとコンロの間も狭いため、
毎日の調理にご不便を感じられていました。
改修後は間口210㎝のキッチンに取替えました。
加熱機器はIHに変更し、食器洗い乾燥機も入って
快適なキッチンになりました。
●キッチン
#クリナップ #ラクエラ
壁付I型 間口210㎝
扉:コンフォート トッコモカクリーム
レンジフード:洗エールレンジフード
リフォーム概要
建物種別 | 戸建 |
---|---|
リフォーム部位・テーマなど | キッチン |
参考価格 | 180万円 |
施工時期 | 2024年12月実施 |
メーカー名・製品名 | キッチン クリナップ(ラクエラ) |
タグ |
浪速リモデリング株式会社 その他のリフォーム事例
もどる
新規登録無料
マイページ登録されていない方
\ かんたん!1分で登録完了! /
会員限定4つのメリット
最大5社までまとめて見積りができる
一度に10社まで匿名で問い合せができる
気になる会社や事例写真を
保存して分析できる
リフォームに役立つ情報を
定期配信
<注意>
マイページ登録はリフォームを検討中のお客様を対象としたサービスです。
営業・商談・営利目的での「マイぺージ」登録やメッセージなどの送信はご遠慮ください。