
北洲リフォーム | リフォーム事例を見る | リノベーション(全面改修) 1階の暮らし心地を一新
写真のみ

南側の続き間がひとつながりになって、広々としたLDKに生まれ変わっています。

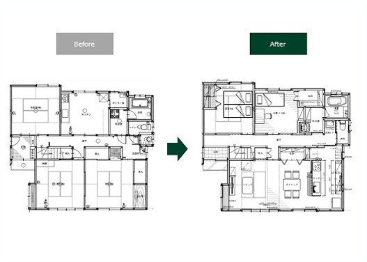
メインとなる1階での暮らしを快適にするために、間取りを変更し、断熱性を向上させるリフォームを行いました。

浴室も新しくなり、脱衣室はスペースと収納力がアップしました!

新しい洗面コーナーとトイレです。トイレの窓には内窓も設置されていますね。落ち着いた色味の素敵な内装に仕上がっています。

カウンター型カップボードの上部には1段の造作棚。キッチン奥の扉から出ると水まわりにつながり、お洗濯や洗面コーナーへの家事動線もスムーズです。

以前の押入れスペースはリビング収納へ!扉を閉めればLDKはいつもすっきりを保てます。

玄関は、新しくつくられた玄関ホールにより印象が大きく変わりました!

ポーチの軒天やライトも新しくなり、玄関ドアも断熱性能を伴った引き戸に一新されました!

こちらが以前のキッチンだったお部屋です。窓の断熱性能も高まり、ウォークインクローゼットのある洋室に生まれ変わりました。

玄関を入ってすぐの和室です。内装がリフレッシュされ落ち着いた寝室になっていますね。
リフォーム会社のコメント
築29年の木造2階建てにお住まいのK様。
家の寒さを何とかしたいというご要望から、1階の暮らし心地を一新させる、間取り変更も含めた性能向上リノベーションを行いました。
【リフォームのポイント】
①【暮らし心地を一新させる、性能向上リノベーション!】
メインとなる1階での暮らしを快適にするために、間取りを変更し、断熱性を向上させるリフォームを行いました。解体した後、お住まいを新しく整えるとともに、床下・天井・窓の断熱工事などを行うことで、一年中快適に過ごすことができるお住まいに生まれ変わりました。また、暮らし方に合う使いやすい家事動線に間取りを変えています。キッチン奥の扉から出ると水まわりにつながり、お洗濯や洗面コーナーへの家事動線もスムーズです。
②【北側にあった独立キッチンを南側に!広々LDKへ間取り変更。】
キッチンは暗くなりがちな北側に独立してありました。きれいにお使いでしたが、寒さにお困りで、お茶の間の和室と廊下を挟んでいたこともあって、ちょっぴり距離を感じる空間でした。今回のリノベーションで南側の8畳続き間が、広々としたLDKに生まれ変わりました♪日当たりが良い、ひとつながりの空間になりました。リビング収納やパントリーもつくり、必要な収納量を確保しています。暮らしがスッキリし、お気に入りのアイテムを愛でる愉しみも膨らみますね!
③【玄関ホールの新設で、デザインも魅力的な仕上がりに。】
玄関は、新しくつくられた玄関ホールにより印象が大きく変わりました!正面のアクセントウォールと照明が醸し出す雰囲気がとっても素敵ですね!扉で廊下側と仕切ることもできるのが魅力的です。玄関ドアも断熱性能を伴った引き戸に一新されました!光を取り込む玄関が、生まれ変わったお住まいの顔となりました。
リフォーム概要
建物種別 | 戸建 |
---|---|
リフォーム部位・テーマなど | リノベーション(全面改修) | 屋根・外壁 | キッチン | 風呂 | トイレ | 洗面化粧台・洗面所 | リビング・ダイニング | 洋室・子供部屋 | 寝室 | 和室 | 玄関・ポーチ | 廊下・階段 | 床・フローリング | 収納 | 断熱・窓・省エネ | バリアフリー・介護 | 自然素材 |
参考価格 | 1000万円 |
施工時期 | 2022年06月実施 |
メーカー名・製品名 | 床材 ぺルゴ(ペルゴフロア) キッチン パナソニック(ラクシーナ) | 浴室 LIXIL(アライズZ) | 洗面化粧台 クリナップ(ファンシオ) | トイレ LIXIL(トイレ―ナR) | |
タグ |
北洲リフォーム その他のリフォーム事例
マイページ登録されていない方
\ かんたん!1分で登録完了! /
会員限定4つのメリット
最大5社までまとめて見積りができる
一度に10社まで匿名で問い合せができる
気になる会社や事例写真を
保存して分析できる
リフォームに役立つ情報を
定期配信
<注意>
マイページ登録はリフォームを検討中のお客様を対象としたサービスです。
営業・商談・営利目的での「マイぺージ」登録やメッセージなどの送信はご遠慮ください。